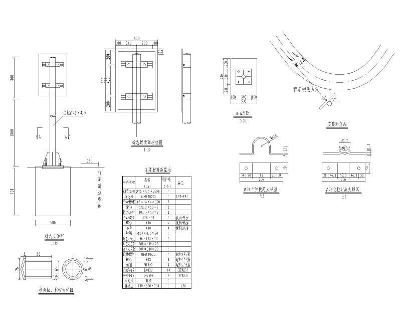
双向六车道城市主干路交通施工大样图cad平面布置图
- 发布时间:2024-01-02
- 评论次数:0
- 浏览次数:0
- 文件大小:19.78 MB
- 收藏次数:0
- 
								文件名称: 附件-996876767766655885.zip 附件-996876767766655885.zip
								相关下载
							
						- 双向六车道城市快速路交通工程大样图平面图
- 双向六车道城市主干道交通工程施工大样图
- 双向六车道城市主干道交通工程CAD施工大样图设计21张
- 双向六车道隧道交通工程施工大样图平面图,设计说明
- 30KM/h双向四车道城市主干路交通工程图纸cad
- 双向六车道城市主干道交通工程CAD施工图纸设计(全长1222米).dwg
- 双向四车道城市次干路交通工程设计大样图
- 双向六车道交通工程全套施工图纸(40张).
- 双向四车道城市次干路交通工程大样图cad平面图
- 双向六车道道路扩建项目交通工程CAD施工大样图设计25张
- 双向八车道城市主干路排水工程设计大样图.dwg
- 城市双向四车道交通工程全套CAD施工图纸(25张)
- 城市双向四车道交通工程全套CAD施工图纸.dwg
- 双向六车道城市次干路缓堵改造施工大样图cad
- 双向四车道城市支路全套设计施工大样图33张(道路交通工程).
- 双向二车道城市支路工程全套施工大样图(30张道路交通工程).
- 双向六车道照明工程全套施工大样图(19页).
- 双向六车道桥梁延伸段交通工程施工图纸2020cad
- 双向四车道交通工程标志标线改造施工大样图cad
- 双向八车道城市主干路桥梁工程设计图纸.dwg
全部评论
						
							评论网友评论仅友表达个人看法,并不表明本站同意其观点,不得发布违反法律法规的内容!
						
						
 
	              	 
	              	 
	              	 
	              	 
	              	