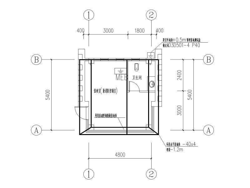
33平米门卫房电气施工大样图
- 发布时间:2021-12-07
- 评论次数:0
- 浏览次数:0
- 文件大小:0.19 MB
- 收藏次数:0
-
文件名称:
附件-996959068556579795.dwg
电气大样图下载
- 小型门卫房电气施工图纸
- 门卫房施工CAD图
- 门卫房及大门结构CAD图纸
- 公司门卫房结构CAD图纸
- 地上2层框架结构门卫房结构CAD施工大样图
- 住宅小区垃圾房及门卫室电气施工图纸
- 2层小区门卫室配电房及物业用房电气施工图纸
- 学校门卫房电气全套施工图纸(甲级院最新设计)
- 海小区服务用房电气施工图纸[门卫室垃圾房]
- 创新中心门卫房强电施工图纸
- 单体门卫房加大门建筑施工CAD图纸.dwg
- 门卫电气CAD图纸
- 电力站门卫房建筑结构CAD图纸
- 机场门卫室电气施工图纸
- 地上2层框架结构门卫房结构设计施工大样图
- 地上3层学校门卫房电气CAD施工图纸(甲级院设计)(火灾自动报警)
- 144平方米门卫室电气报审施工大样图
- 公司钢结构门卫房及公厕结构设计施工图纸
- 大型居住小区垃圾房及门卫结构施工图纸
- 砌体结构厂区大门及门卫房结构CAD施工图纸
全部评论
评论网友评论仅友表达个人看法,并不表明本站同意其观点,不得发布违反法律法规的内容!
