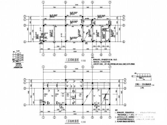
地上3层框架结构服务中心结构施工图纸
- 发布时间:2021-12-05
- 评论次数:0
- 浏览次数:0
- 文件大小:1.02 MB
- 收藏次数:0
- 
								文件名称: 附件-995887888989079655885.zip 附件-995887888989079655885.zip
								相关下载
							
						- 地上4层框架结构服务中心结构改造施工图纸
- 地上4层框架结构服务中心结构CAD施工图纸
- 地上3层现浇框架结构学生服务中心结构施工图纸
- 地上16层框架核心筒结构服务中心结构施工图纸
- 接待服务中心框架结构CAD图纸
- 地上4层框架结构服务中心结构改造CAD施工图纸(6度抗震)(平面布置图)
- 地上单层框架结构餐厅结构施工图纸
- 地上单层框架结构会所结构施工图纸
- 4层框架结构社区卫生服务中心结构施工图纸
- 9层框架结构养老服务中心玻璃幕墙施工图纸
- 4层框架结构社区服务中心建筑施工图纸
- 7层服务中心框架结构CAD施工图纸(地震影响系数)
- 卫生服务中心电梯钢框架结构CAD施工图纸(独立基础)
- 框架结构4层会所建筑施工CAD图纸(社区服务中心)
- 4层框架结构服务中心拆迁改造CAD施工方案图纸
- 卫生服务中心电梯钢框架结构CAD施工图纸
- 3层卫生服务中心框架结构CAD施工图纸
- 服务中心地上通用节点详大样图2018
- 地上5层框架结构商业办公楼地上部分结构施工图纸
- 地上六1层框架结构住宅楼结构CAD施工图纸(仅地上部分)
全部评论
						
							评论网友评论仅友表达个人看法,并不表明本站同意其观点,不得发布违反法律法规的内容!
						
						
 
	              	 
	              	 
	              	