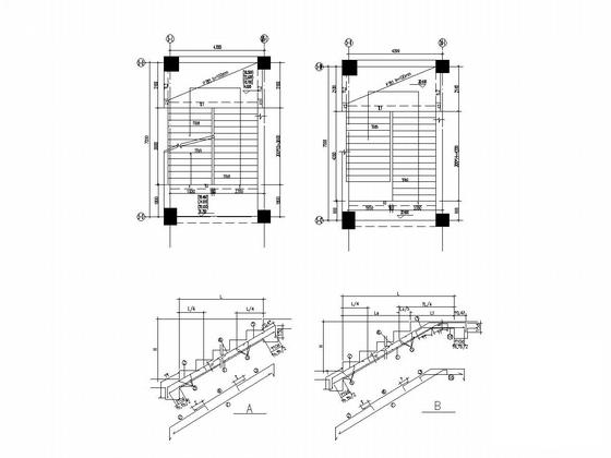
8层框架结构服务中心结构CAD施工图纸(裙房)(楼梯配筋图)
- 发布时间:2022-09-26
- 评论次数:0
- 浏览次数:0
- 文件大小:4.43 MB
- 收藏次数:0
- 
								文件名称: 附件-995876769789099756988.rar 附件-995876769789099756988.rar
								相关下载
							
						- 4层框架结构医院结构CAD施工图纸(楼梯配筋图)
- 板式楼梯结构配筋CAD图纸
- 两层框架结构农贸市场结构CAD图纸(楼梯配筋图)
- 各种楼梯配筋CAD图纸
- CAD板式楼梯配筋表
- 3层筏型基础框架结构别墅结构CAD施工图纸(楼梯配筋图)
- 农村3层框架结构别墅结构设计CAD施工图纸(楼梯配筋图)
- 3层独立基础框架结构别墅结构CAD施工图纸(6度抗震)(楼梯配筋图)
- 3层桩基础框架结构商场结构CAD施工图纸(楼梯配筋图)
- 2层独立基础框架结构体育馆结构CAD施工图纸(楼梯配筋图)
- 通用楼梯模板,用于结构配筋大样
- 2层框架结构厂房结构设计方案图纸(楼梯配筋图)
- 2层仿古长廊结构CAD施工图纸(楼梯配筋图)
- 3层框架别墅建筑结构CAD施工图纸(楼梯配筋图)
- 5层框架厂房结构CAD施工图纸(楼梯配筋图)
- 2层框架办公室结构CAD图纸(楼梯配筋图)
- 6层异型柱结构CAD图纸(楼梯配筋图)
- 4层砖混结构设计方案CAD图纸(楼梯配筋图)
- 3层框架结构幼儿园结构施工图梁配筋图
- 3层框架结构别墅结构设计施工图配筋图
全部评论
						
							评论网友评论仅友表达个人看法,并不表明本站同意其观点,不得发布违反法律法规的内容!
						
						
 
	              	 
	              	 
	              	 
	              	 
	              	