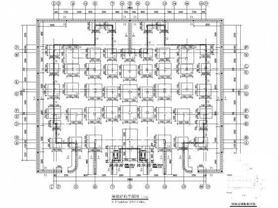
1500平3层异形柱框架结构别墅建筑结构施工大样图
- 发布时间:2021-12-03
- 评论次数:0
- 浏览次数:0
- 文件大小:4.53 MB
- 收藏次数:0
-
文件名称:
附件-995887779868659950808.rar
异形柱框架结构别墅下载
- 异形柱框架结构(2016年)
- 两层框架结构异形柱别墅结构施工图纸
- 两层异形柱框架结构别墅结构设计施工图纸
- 3层异形柱框架结构旅游度假村别墅结构施工图纸
- 2层异形柱框架结构别墅结构施工图纸
- 两层异形柱框架结构高档别墅结构施工图纸(品)
- 3层别墅异形柱混凝土框架结构施工方案图纸
- 异形柱框架结构别墅结构CAD施工图纸(、14张)
- 3层异形柱框架结构别墅结构CAD施工图纸(建筑图纸)
- 2层异形柱框架结构双拼别墅结构CAD施工图纸(独立基础)
- 3层异形柱框架结构别墅结构CAD施工图纸(坡屋顶)
- 3层框架结构别墅结构CAD施工图纸(异形柱E户型)
- 国内3层异形柱框架结构别墅结构CAD施工图纸(独立基础)
- 两层异形柱框架结构别墅结构CAD施工图纸
- 两层异形柱框架结构高档别墅结构CAD施工图纸(精品)
- 3层异形柱框架结构别墅结构施工CAD图纸(坡屋顶)
- 多层异形柱框架结构联排别墅结构CAD施工图纸(2013)
- 3层框架结构别墅结构CAD施工图纸(异形柱D户型)
- 3层框架结构别墅结构CAD施工图纸(异形柱E户型)
- 欧式别墅异形柱框架结构CAD施工图纸
全部评论
评论网友评论仅友表达个人看法,并不表明本站同意其观点,不得发布违反法律法规的内容!
