admin
|
退出
|
登录
|
注册
|
0
积分
|
赚取积分
|
VIP领取积分
|
帮助中心
|
首页
【知石网】是一个专业资料分享学习平台,本站提供大量施工技术文档和设计下载。
首页
施工图纸
施工方案
施工组织
施工交底
合同表格
建筑结构
节点详图
毕业设计
平面图纸
景观设计
电气知识
环保知识
您当前位置:
首页
»
其他文档
»
其他资料
»
异形柱框架结构设计说明
异形柱框架结构设计说明
资料简介
赚取积分
搜索更多资源
附件详情
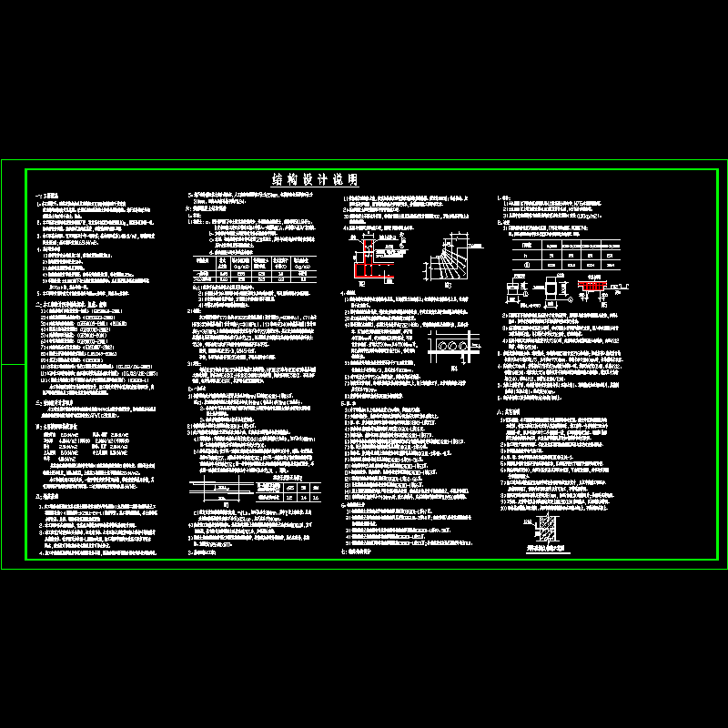
该项目采用现浇钢筋混凝土异形柱框架结构。地下室外墙采用钢筋混凝土墙以利于挡土、防水。
以下是附件的其中一部分截图,共1张,您也可以
搜索
更多您想要的资源
第 1 张图
以上是部分截图,请下载附件后查看完整高清内容
发布时间:2023-12-28
评论次数:0
浏览次数:0
文件大小:0.36 MB
收藏次数:0
文件名称:
附件-995788977569555770.rar
下载信息
加入收藏
赚取积分
立即下载
对不起,系统繁忙,请稍后再试,或联系管理员
对不起,您的积分余额不足,请
充值积分
恭喜购买成功!请
下载文件
相关下载
异形柱框架结构设计说明
异形柱框架结构设计说明
异形柱框架结构(2016年)
异形柱框架结构设计说明和cad施工图纸
一套异形柱框架结构设计说明
异形柱框架结构设计说明.dwg
异形柱框架结构设计说明.dwg
异形柱框架结构设计说明.dwg
异形柱框架结构设计说明.dwg
异形柱框架结构设计说明.dwg
异形柱结构设计说明
框架结构设计说明_钢筋混凝土异形柱框架结构cad
异形柱框架结构CAD施工图纸
异形柱框架结构设计的探讨
异形柱框架结构设计探讨
异形柱框架结构设计探讨.pdf
异形柱框架结构设计初探
大开间异形柱框架结构设计
异形柱框架结构设计.pdf
异形框架结构设计说明
全部评论
评论
网友评论仅友表达个人看法,并不表明本站同意其观点,不得发布违反法律法规的内容!
下载排行
异形框架结构设计说明.dwg
7层异形柱框架结构住宅楼结构施工图设计说明
异形柱框架剪力墙结构设计说明
框架异形柱砖混结构设计说明
3层异形柱住宅结构设计说明
一套异形柱结构设计说明
异形柱框架别墅结构设计说明.dwg
异形柱框架剪力墙结构设计说明.dwg
框架异形柱砖混结构设计说明.dwg
薄壁异形柱框架别墅结构设计说明.dwg
下载推荐
3层异形柱住宅楼结构设计说明.dwg
异形柱框架别墅结构设计说明cad
异形柱的结构设计
异形柱结构设计
7层异形柱框架结构住宅楼结构施工图墙柱结构平面图
7层异形柱框架结构住宅楼结构施工图柱平面图
4层异形柱框架结构欧式别墅CAD施工图纸(柱下独立基础)
底部抽柱带转换层的异形柱框架结构设计与施工.pdf
异型柱框架结构设计说明
异形柱框架结构墙体节点构造详大样图
网站首页
|
信息产业部备案/许可证编号:苏ICP备2021052619号-1
苏公网安备:32041102001778号
本站所有内容均由网友自主分享,仅供学习和参考,如有侵权内容或者违法行为,请及时联系站长删除。