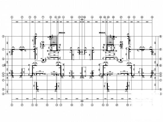
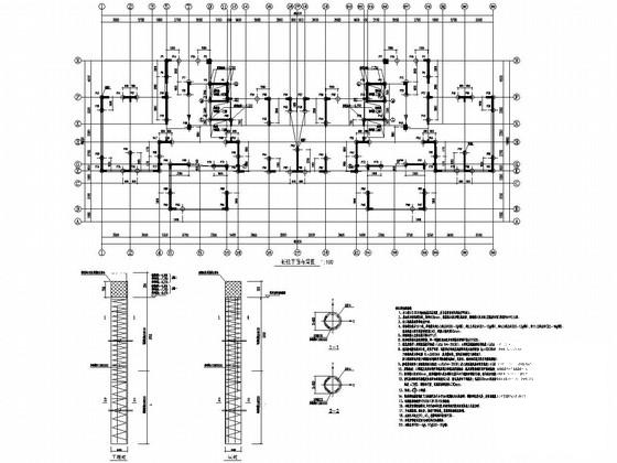
四栋28层剪力墙结构住宅楼结构施工大样图
- 发布时间:2021-12-03
- 评论次数:0
- 浏览次数:0
- 文件大小:2.74 MB
- 收藏次数:0
-
文件名称:
附件-995887958078799559950.zip
相关下载
- 四栋28层剪力墙结构高层住宅楼结构施工大样图
- 四栋30层剪力墙结构高档住宅楼结构施工图纸
- 四栋17层剪力墙结构普通住宅楼结构施工图纸
- 四栋18层剪力墙结构C户型住宅楼结构CAD施工图纸(仅地上结构).dwg
- 2层四栋框架结构商铺结构设计施工图(大样图详细)
- 四栋地上2层框架结构活动中心结构施工大样图
- 2层四栋框架结构商铺结构CAD施工图(大样图详细)
- 26层框架剪力墙结构住宅楼结构施工大样图
- 16层剪力墙结构住宅楼结构施工大样图
- 地上29层剪力墙结构住宅楼结构施工大样图
- 地上15层剪力墙结构住宅楼结构施工大样图
- 13层框架剪力墙结构住宅楼结构施工大样图
- 地上23层剪力墙结构住宅楼结构施工大样图
- 16层框架剪力墙结构住宅楼结构施工大样图
- 9层框架剪力墙结构住宅楼结构施工大样图
- 15层剪力墙结构住宅楼结构施工大样图
- 地上9层剪力墙结构住宅楼结构施工大样图
- 10层剪力墙结构住宅楼结构施工大样图
- 28层剪力墙结构住宅楼结构施工大样图
- 地上33层剪力墙结构住宅楼结构施工大样图
全部评论
评论网友评论仅友表达个人看法,并不表明本站同意其观点,不得发布违反法律法规的内容!
