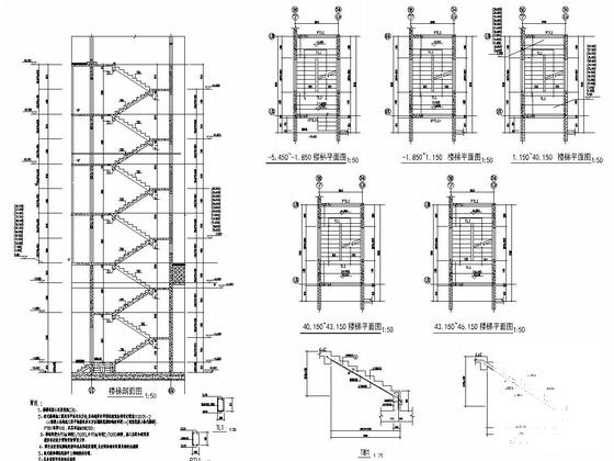
15层剪力墙结构住宅楼结构施工大样图
- 发布时间:2021-12-03
- 评论次数:0
- 浏览次数:0
- 文件大小:5.33 MB
- 收藏次数:0
-
文件名称:
附件-995888099579088770587.zip
相关下载
- 26层框架剪力墙结构住宅楼结构施工大样图
- 16层剪力墙结构住宅楼结构施工大样图
- 地上29层剪力墙结构住宅楼结构施工大样图
- 地上15层剪力墙结构住宅楼结构施工大样图
- 13层框架剪力墙结构住宅楼结构施工大样图
- 地上23层剪力墙结构住宅楼结构施工大样图
- 16层框架剪力墙结构住宅楼结构施工大样图
- 9层框架剪力墙结构住宅楼结构施工大样图
- 地上9层剪力墙结构住宅楼结构施工大样图
- 10层剪力墙结构住宅楼结构施工大样图
- 28层剪力墙结构住宅楼结构施工大样图
- 地上33层剪力墙结构住宅楼结构施工大样图
- 地上32层剪力墙结构住宅楼结构施工大样图
- 11层剪力墙结构住宅楼结构施工大样图(筏基)
- 11层剪力墙结构住宅楼结构施工大样图
- 30层剪力墙结构住宅楼结构施工大样图
- 12层剪力墙结构住宅楼结构施工大样图
- 24层剪力墙结构住宅楼结构施工大样图
- 地上18层剪力墙结构住宅楼结构施工大样图
- 25层剪力墙结构住宅楼结构施工大样图
全部评论
评论网友评论仅友表达个人看法,并不表明本站同意其观点,不得发布违反法律法规的内容!
