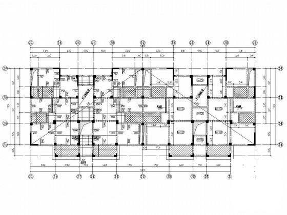
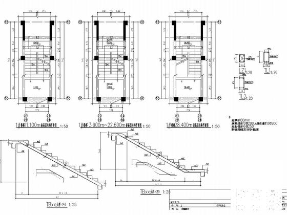
9层框架剪力墙结构住宅楼结构施工大样图
- 发布时间:2021-12-03
- 评论次数:0
- 浏览次数:0
- 文件大小:1.96 MB
- 收藏次数:0
- 
								文件名称: 附件-995888089870557798557.zip 附件-995888089870557798557.zip
								相关下载
							
						- 26层框架剪力墙结构住宅楼结构施工大样图
- 13层框架剪力墙结构住宅楼结构施工大样图
- 16层框架剪力墙结构住宅楼结构施工大样图
- 11层框架剪力墙结构住宅楼结构施工大样图
- 7层框架剪力墙结构住宅楼结构施工大样图
- 18层框架剪力墙结构住宅楼结构施工大样图
- 18层框架剪力墙结构住宅楼结构施工大样图节点大样图
- 十八层框架剪力墙结构住宅楼结构施工大样图结构图
- 11层框架剪力墙结构住宅楼结构施工大样图结构平面图
- 两栋28层框架剪力墙结构住宅楼结构施工大样图
- 两栋34层框架剪力墙结构住宅楼结构施工大样图
- 28层框架剪力墙结构高层住宅楼结构施工大样图
- 6层异形柱框架剪力墙结构住宅楼结构施工大样图
- 地上6层异形柱框架剪力墙结构住宅楼结构施工大样图
- 地上9层框架剪力墙结构住宅楼结构施工大样图
- 地上18层框架剪力墙结构住宅楼结构施工大样图
- 地上15层异形柱框架剪力墙结构住宅楼结构施工大样图
- 三栋34层框架剪力墙结构住宅楼结构施工大样图
- 地上6层框架剪力墙结构住宅楼结构施工大样图
- 地上7层框架剪力墙结构住宅楼结构施工大样图
全部评论
						
							评论网友评论仅友表达个人看法,并不表明本站同意其观点,不得发布违反法律法规的内容!
						
						
 
	              	 
	              	 
	              	 
	              	 
	              	