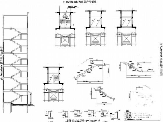
11层剪力墙结构住宅楼结构施工大样图(筏基)
- 发布时间:2021-12-03
- 评论次数:0
- 浏览次数:0
- 文件大小:3.27 MB
- 收藏次数:0
- 
								文件名称: 附件-995887659787689678550.rar 附件-995887659787689678550.rar
								相关下载
							
						- 6层纯剪力墙住宅楼结构CAD施工图纸(筏基)
- 18层剪力墙住宅楼结构CAD施工图纸(梁筏基础)
- 27层剪力墙住宅楼结构CAD施工图纸(桩筏基础)
- 高层住宅楼桩筏基础结构CAD施工大样图
- 30层剪力墙结构桩筏基础住宅楼结构CAD施工图纸
- 33层剪力墙结构住宅楼结构CAD施工图纸(平板式桩筏基础)
- 38层桩筏基础剪力墙结构高层住宅楼结构CAD施工图纸
- 18层剪力墙结构住宅楼结构CAD施工图纸(平板式筏基)
- 15层剪力墙结构住宅楼结构施工图纸(平板式筏基)
- 剪力墙结构高层住宅楼结构CAD施工图纸(38层桩筏基础)
- 18层剪力墙结构住宅楼结构CAD施工图纸(平板式筏基)
- 33层剪力墙结构住宅楼结构CAD施工大样图(平板式桩筏基础)
- 18层剪力墙结构片筏基础公寓结构CAD施工图纸
- 桩筏基础剪力墙结构住宅结构CAD施工图纸
- 16层剪力墙结构安置房结构CAD施工图纸(桩筏基础)
- 30层剪力墙结构桩筏基础住宅结构CAD施工图纸
- 18层高层住宅楼剪力墙结构CAD施工图纸(平板式筏基)
- 28层剪力墙住宅楼结构CAD施工图纸(筏基、8度区)
- 8层现浇剪力墙住宅楼结构CAD施工图纸(平筏基础8度抗震)
- 9层框架剪力墙住宅楼结构CAD施工图纸(平筏基础)
全部评论
						
							评论网友评论仅友表达个人看法,并不表明本站同意其观点,不得发布违反法律法规的内容!
						
						
 
	              	 
	              	 
	              	