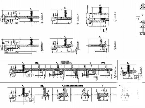
地上33层剪力墙结构住宅楼结构施工大样图
- 发布时间:2021-12-03
- 评论次数:0
- 浏览次数:0
- 文件大小:4.05 MB
- 收藏次数:0
-
文件名称:
附件-995888960750995700578.zip
相关下载
- 地上29层剪力墙结构住宅楼结构施工大样图
- 地上15层剪力墙结构住宅楼结构施工大样图
- 地上23层剪力墙结构住宅楼结构施工大样图
- 地上9层剪力墙结构住宅楼结构施工大样图
- 地上32层剪力墙结构住宅楼结构施工大样图
- 地上18层剪力墙结构住宅楼结构施工大样图
- 地上25层剪力墙结构住宅楼结构施工大样图
- 地上8层剪力墙结构住宅楼结构施工大样图
- 地上7层剪力墙结构住宅楼结构施工大样图
- 地上28层剪力墙结构住宅楼结构施工大样图
- 地上30层剪力墙结构住宅楼结构施工大样图
- 地上26层剪力墙结构住宅楼结构施工大样图
- 地上32层剪力墙结构高层住宅楼结构施工大样图
- 地上19层剪力墙结构A级高度住宅楼结构施工大样图
- 地上6层异形柱框架剪力墙结构住宅楼结构施工大样图
- 地上6层剪力墙结构住宅楼建筑结构施工大样图
- 地上9层框架剪力墙结构住宅楼结构施工大样图
- 地上18层框架剪力墙结构住宅楼结构施工大样图
- 地上15层异形柱框架剪力墙结构住宅楼结构施工大样图
- 地上6层框架剪力墙结构住宅楼结构施工大样图
全部评论
评论网友评论仅友表达个人看法,并不表明本站同意其观点,不得发布违反法律法规的内容!
