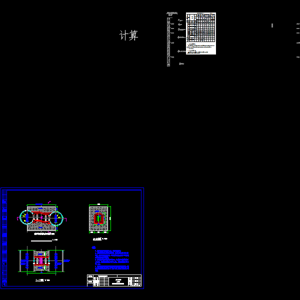
地铁盾构区间联络通道结构设计CAD图纸(冻结法)
- 发布时间:2023-12-28
- 评论次数:0
- 浏览次数:0
- 文件大小:2.41 MB
- 收藏次数:0
- 
								文件名称: 附件-995898998977959707.rar 附件-995898998977959707.rar
								相关下载
							
						- 地铁区间盾构防水CAD图纸
- 地铁隧道盾构区间测量方案
- 粘土地层地铁区间冻结法专项设计CAD图纸15张
- 粘土地层地铁区间冻结法专项设计图纸.dwg
- 盾构区间结构设计
- 地铁区间盾构始发井和工作井平面示意CAD图纸
- 地铁区间盾构标准衬砌环管片结构图纸.dwg
- 地铁盾构区间隧道地质勘察纵断面CAD图纸
- 轨道交通工程区间联络通道及泵站施工组织设计2011(冻结加固)
- 地铁区间盾构施工隧道监测方案25页(拱顶沉降隧道上浮隆陷)
- 地铁区间隧道土压平衡式盾构施工方案45页(管线保护)
- 地铁区间竖井及横通道施工方案(区间降水马头门施工86页)(喷射混凝土支护)
- 浅淡盾构区间结构设计.pdf
- 地铁区间竖井及横通道施工方案(筑结构)
- 地铁13号线标区间旁通道施工方案(安全疏散)
- 地铁盾构井施工设计图纸.
- 地铁区间隧道轨道工程CAD图纸15张
- 地铁隧道区间地质勘察纵剖面CAD图纸
- 地铁区间深基坑地质纵断面CAD图纸
- 地铁盾构井施工监测点布置设计CAD图纸
全部评论
						
							评论网友评论仅友表达个人看法,并不表明本站同意其观点,不得发布违反法律法规的内容!
						
						
 
	              	 
	              	 
	              	 
	              	 
	              	