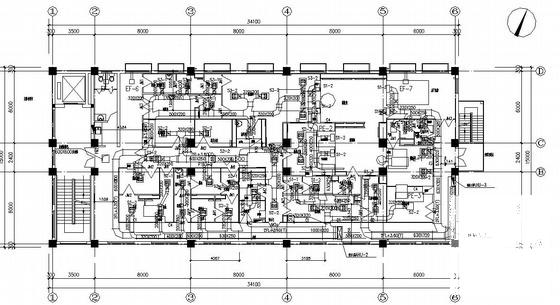
3层海冻干针剂中试车间空调通风施工图纸
- 发布时间:2021-12-02
- 评论次数:0
- 浏览次数:0
- 文件大小:2.8 MB
- 收藏次数:0
- 
								文件名称: 附件-995858786558058578777.rar 附件-995858786558058578777.rar
								车间空调通风下载
							
						- 冻干车间空调机组方案设计CAD图纸
- 针剂车间消防布置图纸.
- 海足球场空调通风图纸
- 车间空调通风平面CAD图纸
- 海11531平米4层大学教学楼空调通风平面施工图纸
- 4层海大学教学楼空调通风平面施工图纸
- 多层制药车间空调通风系统设计施工图纸
- 3层制剂车间空调通风施工图纸
- 2层车间空调通风施工图纸
- 制剂车间空调通风设计施工图纸
- 制药车间空调通风CAD施工图纸.dwg
- 海1178平米地14层酒店空调通风燃气图纸
- 药业公司车间改造工程空调通风图纸
- 水产冻品配送中心暖通空调CAD施工图纸
- 生产车间空调通风设备CAD平面图
- 技术研究所5层中试车间电气CAD施工图纸(火灾自动报警系统)
- 技术研究所5层中试车间电气施工CAD图纸(火灾自动报警系统)
- 动物房车间的通风、空调及净化空调设计成套CAD施工图纸
- 海3层别墅空调采暖施工图纸
- 海4层敬老院空调施工图纸
全部评论
						
							评论网友评论仅友表达个人看法,并不表明本站同意其观点,不得发布违反法律法规的内容!
						
						
 
	              	 
	              	