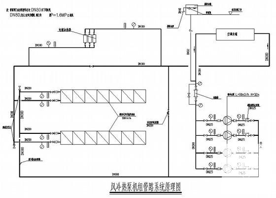
15层办公大楼空调通风CAD施工图纸
- 发布时间:2023-03-13
- 评论次数:0
- 浏览次数:0
- 文件大小:2.17 MB
- 收藏次数:0
- 
								文件名称: 附件-995858598058558850958.rar 附件-995858598058558850958.rar
								相关下载
							
						- 行政办公大楼空调通风及防排烟系统设计施工图纸
- 气象局办公大楼空调通风系统设计施工图纸
- 24层商务办公大楼空调通风设计施工图纸
- 15层办公大楼空调通风设计CAD施工图纸(地下1层)
- 消防办公大楼通风空调系统设计CAD施工图纸
- 24层商务办公大楼空调通风设计CAD施工图纸
- 19层通信办公大楼空调通风设计CAD施工图纸
- 22层甲级办公大楼空调通风设计CAD施工图纸
- 超高层酒店办公大楼空调通风设计施工图纸.dwg
- 高层办公大楼空调通风系统设计CAD施工大样图(局部)
- 邮政办公大楼空调系统设计施工图纸
- 8层行政办公大楼空调通风及防排烟系统设计施工图纸
- 15层研发办公大楼净化空调通风防排烟消防系统设计CAD施工图纸
- 高层办公大楼空调通风及防排烟系统设计CAD施工图纸(人防设计)
- 4层技术办公大楼空调通风及防排烟系统设计CAD施工图纸
- 22层甲级办公大楼空调通风设计CAD施工图纸(防排烟系统图)
- 多层技术办公大楼空调通风及防排烟系统设计CAD施工图纸
- 15层研发办公大楼净化空调通风防排烟消防系统设计CAD施工图纸
- 8层行政办公大楼空调通风及防排烟系统设计CAD施工图纸(变频多联机空调系统)
- 商场通风空调施工CAD图纸
全部评论
						
							评论网友评论仅友表达个人看法,并不表明本站同意其观点,不得发布违反法律法规的内容!
						
						
 
	              	 
	              	 
	              	 
	              	