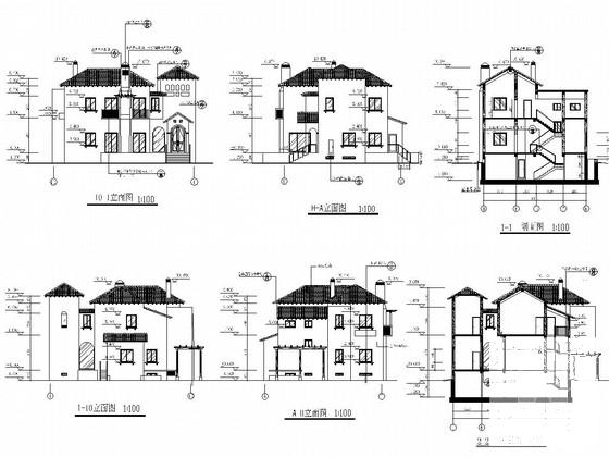
国内两层框架结构图纸(建筑图纸)
- 发布时间:2023-01-17
- 评论次数:0
- 浏览次数:0
- 文件大小:5.49 MB
- 收藏次数:0
-
文件名称:
附件-995876597676765786770.rar
相关下载
- 国内两层框架结构CAD施工图纸(建筑图纸)
- 国内两层框架结构别墅结构施工图纸
- 国内上两层框架结构住宅楼建筑结构大样图(8度抗震)
- 国内两层框架结构农庄项目结构施工大样图.
- 国内两层砌体结构别墅CAD图纸
- 国内两层砌体坡屋面私人会所全套建筑结构设计施工图纸
- 欧式风格两层会所建筑施工CAD图纸(国内知名地产)(门窗大样)
- 国内19层框架结构小区建筑施工CAD图纸(4号楼).dwg
- 两层框架结构休闲别墅结构CAD施工图纸(建筑图纸)
- 两层框架结构陶瓷创作基地CAD施工图纸(建筑图纸)
- 两层框架结构磷矿职工医院结构图纸(建筑图纸)
- 两层异形柱框架结构CAD施工图纸(建筑图纸)
- 两层框架结构中学厕所结构CAD施工图纸(建筑图纸)
- 两层框架结构商铺结构CAD施工图纸(建筑图纸)
- 两层框架结构休闲别墅结构CAD施工图纸(建筑图纸)
- 国内上两层小型别墅给排水设计施工图纸
- 国内507平米两层别墅空调除尘施工图纸
- 国内两层框架商业楼结构设计CAD施工图纸
- 国内两层食堂宿舍照明平面图纸.dwg
- 国内上3层公寓空调图纸(地下两层).dwg
全部评论
评论网友评论仅友表达个人看法,并不表明本站同意其观点,不得发布违反法律法规的内容!
