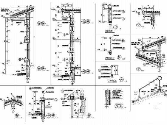
两层框架结构独栋别墅建筑结构施工大样图
- 发布时间:2021-12-03
- 评论次数:0
- 浏览次数:0
- 文件大小:2.39 MB
- 收藏次数:0
-
文件名称:
附件-995887755677858855976.rar
框架结构独栋别墅下载
- 两层独栋别墅全套施工CAD图纸(建筑结构水电图纸)
- 两层独栋别墅建筑施工CAD图纸
- 两层独栋别墅建筑方案设计_CAD
- 3层独栋别墅建筑结构施工大样图
- 2层框架结构独栋别墅建筑结构CAD图纸
- 两层框架结构私人别墅建筑结构全套施工图纸
- 框架结构独栋别墅建筑施工CAD图纸
- 英式风格别墅3层独栋别墅建筑结构水电CAD施工图纸
- 3层独栋框架结构别墅建筑设计
- 3层独栋别墅建筑设计框架结构
- 两层现代风格私人独栋别墅设计施工图纸
- 砖混结构两层独栋别墅建筑施工图纸设计
- 两层独栋别墅建筑施工方案图纸(CAD)
- 现代风格两层独栋别墅建筑施工CAD图纸
- 坡屋顶两层独栋别墅建筑施工CAD图纸
- 两层中式风格独栋别墅建筑施工CAD图纸
- 两层框架结构别墅结构施工大样图
- 两层框架结构农庄别墅结构施工大样图
- 3层山地独栋别墅建筑方案设计CAD图纸(局部两层)
- 两层独栋别墅建筑CAD图纸(初设图纸)
全部评论
评论网友评论仅友表达个人看法,并不表明本站同意其观点,不得发布违反法律法规的内容!
