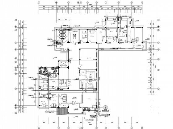
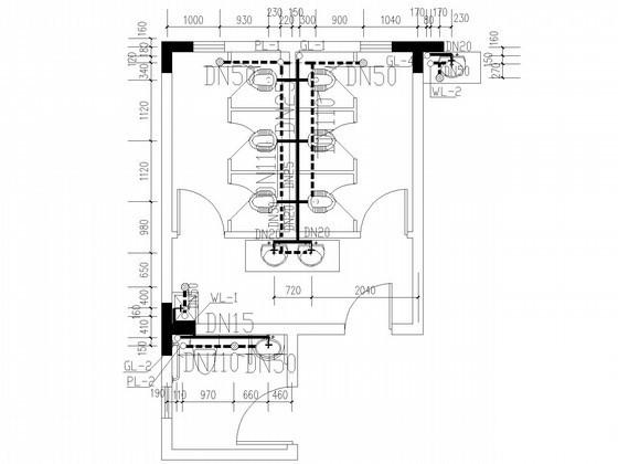
4层医院业务用房给排水CAD图纸
- 发布时间:2023-01-09
- 评论次数:0
- 浏览次数:0
- 文件大小:0.55 MB
- 收藏次数:0
- 
								文件名称: 附件-995860586657750658705.rar 附件-995860586657750658705.rar
								相关下载
							
						- 4层医院业务用房给排水CAD施工大样图
- 煤矿业务用房给排水CAD施工图纸
- 业务用房水电CAD图纸
- 业务用房图纸_12系列建筑标准设计图集_业务用房平面图及详图
- 煤矿业务用房给排水施工图纸(设计说明)
- 检验检测中心业务用房给排水消防CAD施工图纸(绿色建筑)
- 综合业务用房室外给排水总平面CAD施工图纸
- 2层机场业务用房电气施工图纸(2018)
- 局综合业务用房结构CAD施工图纸
- 8层框架业务用房结构CAD施工图纸
- 县交警大队综合业务用房给排水CAD施工图纸(自动喷水灭火系统)
- 两层框架结构交警大队业务技术用房结构施工图纸
- 2层粮仓、业务用房、门卫及厕所电气施工图纸
- 4层机场综合业务用房电气施工图纸(2020)
- 公安局、站前分局、公交分局公安业务技术用房施工图纸
- 单位业务用房智能化设计电气设计CAD施工图纸
- 交警支队7层综合业务用房电气设计CAD施工图纸
- 8层框架结构业务用房结构CAD施工图纸
- 精简机关单位业务用房景观设计CAD施工图纸.dwg
- 财政局业务用房工程结构设计.pdf
全部评论
						
							评论网友评论仅友表达个人看法,并不表明本站同意其观点,不得发布违反法律法规的内容!
						
						
 
	              	 
	              	 
	              	