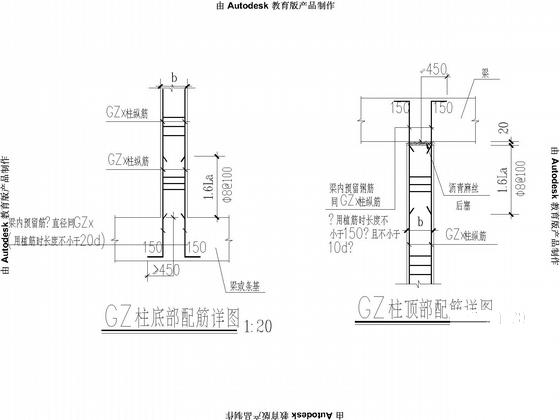
5层综合业务用房工程框架结构CAD施工图纸(平面布置图)
- 发布时间:2022-09-15
- 评论次数:0
- 浏览次数:0
- 文件大小:0.92 MB
- 收藏次数:0
-
文件名称:
附件-995876687607967759855.rar
相关下载
- 局综合业务用房结构CAD施工图纸
- 综合业务用房室外给排水总平面CAD施工图纸
- 业务用房图纸_12系列建筑标准设计图集_业务用房平面图及详图
- 业务用房水电CAD图纸
- 大空间多级吊顶质综合业务用房工程装修QC小组.pdf
- 工程综合业务楼电气施工CAD图纸
- 工程综合业务楼电气施工全套CAD图纸
- 4层机场综合业务用房电气施工图纸(2020)
- 交警支队7层综合业务用房电气设计CAD施工图纸
- 两层框架结构交警大队业务技术用房结构施工图纸
- 8层框架结构业务用房结构CAD施工图纸
- 上10层框架结构业务技术与配套用房设计CAD图纸(楼梯平面图)
- 2层机场业务用房电气施工图纸(2018)
- 8层框架业务用房结构CAD施工图纸
- 煤矿业务用房给排水CAD施工图纸
- 经济适用房框架结构CAD施工图纸(平面布置图)
- 4层医院业务用房给排水CAD图纸
- 财政局业务用房工程结构设计.pdf
- 县交警大队综合业务用房给排水CAD施工图纸(自动喷水灭火系统)
- 交警支队7层综合业务用房电气施工CAD图纸(钢筋混凝土结构)
全部评论
评论网友评论仅友表达个人看法,并不表明本站同意其观点,不得发布违反法律法规的内容!
