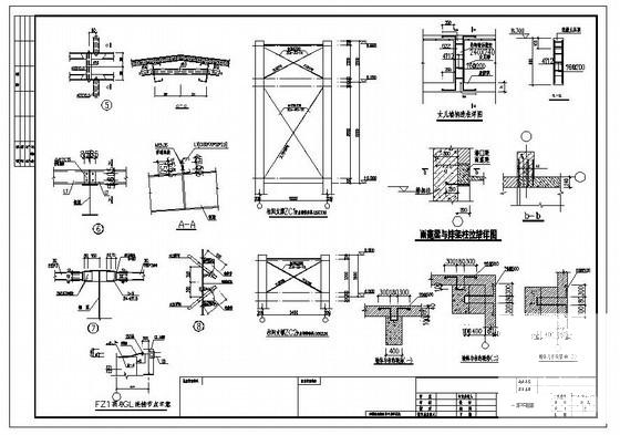
12米跨单层门式刚架车间厂房结构设计图纸(独立基础)
- 发布时间:2023-01-08
- 评论次数:0
- 浏览次数:0
- 文件大小:1.67 MB
- 收藏次数:0
-
文件名称:
附件-995878866987858058967.rar
相关下载
- 22米跨单层门式刚架厂房结构设计图纸(独立基础)
- 高低跨单层门式刚架厂房结构CAD施工图纸(独立基础)
- 单层门式刚架厂房结构设计施工图纸(独立基础)
- 跨度20米单层门式刚架厂房结构设计CAD图纸(独立基础)
- 跨度25米单层门式刚架厂房结构设计CAD图纸(独立基础)
- 单层钢结构门式刚架厂房(21米跨)
- 26米跨单层门式刚架厂房设计CAD图纸(独立基础)(结构布置图)
- 2X24米跨单层门式刚架厂房结构CAD施工图纸(独立基础)(水平支撑)
- 单层门式刚架厂房结构CAD施工图纸(独立基础)(抗震设防类别)
- 单层门式刚架结构工业厂房结构CAD施工图纸(独立基础)
- 单层门式刚架结构厂房结构图纸(柱下独立基础)
- 单层门式刚架结构厂房结构CAD施工图纸(独立基础)
- 单层门式刚架结构厂房结构CAD施工图纸(独立基础)
- 24米跨独立基础门式刚架厂房结构CAD施工图纸
- 156米跨独立基础门式刚架厂房结构CAD施工图纸(建施)
- 24米跨单层门式刚架酿酒车间结构设计施工图纸
- 四跨独立基础单层门式钢架结构厂房结构CAD施工图纸
- 18m跨单层门式钢架厂房结构CAD施工图纸(独立基础)
- 地上单层双跨实腹式门式刚架结构车间厂房结构CAD施工图纸
- 单层双跨实腹式门式刚架结构车间厂房结构CAD施工图纸
全部评论
评论网友评论仅友表达个人看法,并不表明本站同意其观点,不得发布违反法律法规的内容!
