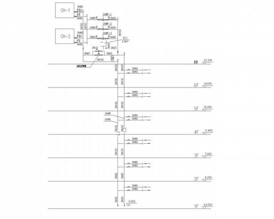
6层办公楼风冷往复式冷水空调系统设计CAD施工图纸
- 发布时间:2022-12-30
- 评论次数:0
- 浏览次数:0
- 文件大小:0.86 MB
- 收藏次数:0
- 
								文件名称: 附件-995858857855908875675.rar 附件-995858857855908875675.rar
								相关下载
							
						- 6层办公楼风冷往复式冷水空调系统设计施工图纸
- 多层办公楼中央空调系统设计CAD施工图纸(风冷往复式冷水机组)
- 多层办公楼中央空调系统设计CAD施工图纸(风冷往复式冷水机组)
- 厂房空调设计CAD图纸(空调冷水主系统图纸)
- 12层商业办公楼空调通风系统设计CAD施工图纸(风冷热泵式冷水机组)
- 高层商业办公楼空调通风系统设计CAD施工图纸(风冷热泵式冷水机组)
- 3层旅游园区办公楼空调通风及防排烟系统设计CAD施工图纸(风冷螺杆冷水热泵机组)
- 综合小型办公楼空调系统设计CAD施工图纸(风冷热泵机组)
- 高层办公楼暖通空调系统设计CAD施工图纸(风冷模块机组)
- 办公楼风冷热泵空调系统设计CAD图纸
- 5层办公楼风冷热泵空调系统CAD施工图纸
- 4层办公大厦暖通空调设计CAD施工图纸(风冷冷水机组)
- 制药厂洁净空调设计cad施工图纸_风冷冷水机组冷源
- 风冷水机系统布置图(18页大样图).dwg
- 5172平米综合办公楼空调制冷工程设计施工图纸(风冷模块冷水机组)
- 综合办公楼空调制冷工程设计CAD施工图纸(风冷模块冷水机组)
- 11层商业住宅综合楼空调通风及防排烟系统设计CAD施工图纸(风冷涡旋冷水机组)
- 17层大型综合超市空调通风系统设计CAD施工图纸(风冷热泵冷水机组).dwg
- 会议中心暖通设计CAD施工图纸(风冷冷水机组)
- 国内别墅区户型A暖通空调CAD施工图纸(风冷冷水机组)
全部评论
						
							评论网友评论仅友表达个人看法,并不表明本站同意其观点,不得发布违反法律法规的内容!
						
						
 
	              	 
	              	 
	              	