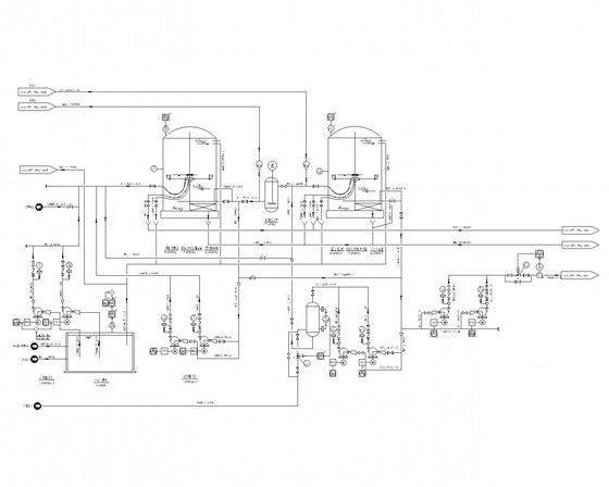
工业园区污水处理厂给排水CAD图纸(工艺图、详图、安装图)(管道布置图)
- 发布时间:2022-12-30
- 评论次数:0
- 浏览次数:0
- 文件大小:6.44 MB
- 收藏次数:0
- 
								文件名称: 附件-995860996869695756678.rar 附件-995860996869695756678.rar
								相关下载
							
						- 工业园区污水处理厂给排水CAD施工图纸(工艺图、详图、安装图)
- 城市污水处理厂全套工艺施工大样图(CASS工艺)
- 污水处理厂新建改良型AAO生化池工艺图纸_平面布置图_cad
- 污水处理站污水预处理工程初步设计施工图纸(UASB工艺)(管道安装图)
- 啤酒污水处理厂工艺全套施工大样图
- CASS工艺污水处理厂成套cad设计图纸和污泥脱水间工艺图
- 污水处理厂工艺CAD图纸
- 储配站管道安装工艺图纸.dwg
- 污水处理厂强电初设图纸(总平面布置图)
- 6万平污水处理厂建筑给排水及工艺施工图纸(CASS工艺)
- 6万平污水处理厂建筑给排水及工艺CAD图纸(CASS工艺)
- 6万平污水处理厂建筑给排水及工艺CAD施工图纸(CASS工艺)
- 污水处理站污水预处理工程CAD施工图纸(UASB工艺)(设备安装图)
- 金城化肥项目工艺管道安装施工方案
- 污水处理厂CASS池控制系统及仪表设计施工图安装图
- 10万吨污水处理厂sbr工艺设计详图纸
- 城市污水处理厂工艺CAD图纸(CASS工艺)
- 污水厂风机房安装CAD图纸(平面布置图)
- 生活污水处理工程给排水施工图纸管道系统图
- 2万吨污水处理厂施工图纸污泥浓缩脱水间工艺图
全部评论
						
							评论网友评论仅友表达个人看法,并不表明本站同意其观点,不得发布违反法律法规的内容!
						
						
 
	              	 
	              	 
	              	 
	              	 
	              	