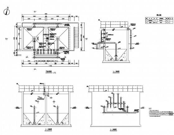
污水处理厂初步设计工艺图纸(曝气沉砂池图)
- 发布时间:2023-03-14
- 评论次数:0
- 浏览次数:0
- 文件大小:9.6 MB
- 收藏次数:0
-
文件名称:
附件-995877789578589605.rar
相关下载
- 细格栅曝气沉砂池工艺CAD施工方案图纸
- 2层污水处理厂细格栅间及曝气沉砂池建筑、结构设计施工大样图
- SBR、沉砂池工艺CAD图纸
- 2层污水处理厂细格栅间及曝气沉砂池建筑、结构设计方案CAD施工图纸
- 污水处理厂旋流沉砂池及中水池工艺及结构施工图纸
- 污水处理厂波浪曝气生物池设计图纸.
- 一套沉砂池工艺设计CAD图纸
- 污水处理厂施工组织设计(旋流沉砂池)
- 城市河滨污水处理厂设计CAD图纸(沉砂池平面图)
- 旋流沉砂池CAD图纸
- 污水处理厂格栅,集水池,曝气反应池,悬浮滤膜净化罐全套cad图纸
- 污水处理厂细格栅及旋流沉砂池结构施工图纸
- 污水处理厂电气设计CAD施工图纸(旋流沉砂池)
- 污水处理厂细格栅及旋流沉砂池CAD施工图纸
- 污水处理厂细格栅及旋流沉砂池结构CAD施工图纸
- 污水处理厂工艺施工设计图纸(生化污泥池、曝气生物滤池、鼓风机房)
- 污水处理厂工艺施工设计CAD图纸(生化污泥池、曝气生物滤池、鼓风机房)
- 污水处理厂旋流沉砂池及中水池工艺及结构CAD施工方案图纸
- 黑龙家污水处理厂曝气生物滤池结构CAD图纸
- 一套细格栅及Pista沉砂池工艺设计CAD图纸
全部评论
评论网友评论仅友表达个人看法,并不表明本站同意其观点,不得发布违反法律法规的内容!
