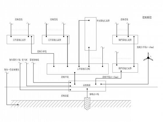
污水处理厂CASS池控制系统及仪表设计施工图安装图
- 发布时间:2021-12-01
- 评论次数:0
- 浏览次数:0
- 文件大小:1.29 MB
- 收藏次数:0
-
文件名称:
附件-995855987096669095588.rar
污水处理厂cass下载
- 城市污水处理厂CASS池图纸
- 城市污水处理厂全套工艺施工大样图(CASS工艺)
- 城市污水处理厂工艺CAD图纸(CASS工艺)
- 污水处理厂CASS工艺总平面布置CAD图纸
- 污水处理厂CAD施工图纸(CASS工艺).dwg
- 污水处理厂CASS池控制系统及仪表设计施工图纸
- 6万平污水处理厂建筑给排水及工艺施工图纸(CASS工艺)
- 6万平污水处理厂建筑给排水及工艺CAD图纸(CASS工艺)
- 6万平污水处理厂建筑给排水及工艺CAD施工图纸(CASS工艺)
- CASS工艺污水处理厂成套cad设计图纸和污泥脱水间工艺图
- 污水厂CAD施工图纸(CASS工艺,)
- 污水厂全套CAD施工图纸(CASS工艺)
- 污水厂cass工艺CAD施工图纸.dwg
- 工业园区5万吨污水处理厂设计图纸(水解酸化CASS高密度澄清池转盘滤池)
- 工业污水处理全套施工图纸,CASS,深度处理平面图
- 冠县污水处理工程CASS池工艺CAD图纸
- cass工艺污水处理工程电气设计CAD图纸.dwg
- 污水处理厂电气施工图纸
- 污水处理厂CAD施工图纸
- 污水处理厂CAD施工图纸
全部评论
评论网友评论仅友表达个人看法,并不表明本站同意其观点,不得发布违反法律法规的内容!
