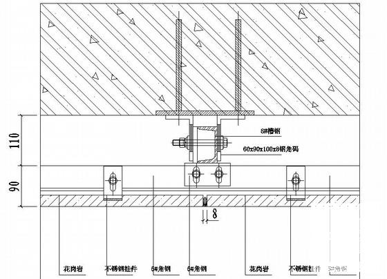
9层商业中心幕墙工程设计CAD图纸
- 发布时间:2022-12-30
- 评论次数:0
- 浏览次数:0
- 文件大小:6.13 MB
- 收藏次数:0
- 
								文件名称: 附件-995877677556777077569.rar 附件-995877677556777077569.rar
								相关下载
							
						- 9层商业中心幕墙工程设计CAD施工图纸
- 德国幕墙工程设计CAD图纸
- 广场幕墙工程设计CAD图纸
- 棚户区商业中心10kV配电工程设计图纸
- 商业中心中水处理工程设计图纸.dwg
- 石材幕墙工程设计说明
- 广场幕墙工程设计图纸(34张图纸)
- 幕墙工程设计图(10页图纸)
- 广播大楼幕墙工程设计图纸
- 酒店综合楼幕墙工程设计图纸
- 广播大楼幕墙工程设计CAD图纸
- 3层国投商业中心幕墙CAD施工图纸
- 大厦幕墙工程设计CAD大样图
- 3层国投商业中心幕墙施工大样图(计算书)
- 11层商业中心幕墙施工大样图
- 商业中心裙房幕墙施工方案大样图
- 新界大浦区太元商业中心幕墙工程节点
- 11层商业中心幕墙CAD施工大样图
- 3层商业中心铝合金玻璃幕墙及门窗CAD施工图纸(抗震烈度)
- 商业中心消防CAD图纸
全部评论
						
							评论网友评论仅友表达个人看法,并不表明本站同意其观点,不得发布违反法律法规的内容!
						
						
 
	              	 
	              	 
	              	