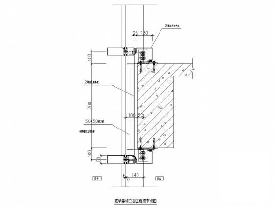
3层商业中心铝合金玻璃幕墙及门窗CAD施工图纸(抗震烈度)
- 发布时间:2022-11-13
- 评论次数:0
- 浏览次数:0
- 文件大小:3.42 MB
- 收藏次数:0
- 
								文件名称: 附件-995877567678788050858.rar 附件-995877567678788050858.rar
								相关下载
							
						- 恢复研究中心玻璃幕墙及铝合金门窗工程施组设计
- 铝合金门窗标准知识
- 住宅项目铝合金门窗、铝合金百叶制作安装施工方案
- 高层住宅楼石材外墙及铝合金门窗专项施工方案
- 花城铝合金门窗制作安装施工方案
- 工程铝合金门窗施工方案
- 住宅项目铝合金门窗施工方案
- 工程铝合金门窗专项施工方案
- 学生公寓铝合金门窗施工方案
- 高层铝合金门窗施工方案
- 玻璃幕墙、铝合金门窗工程施工组织设计(有限责任公司)
- 各种铝合金玻璃门窗及大样CAD节点图纸(轻钢龙骨石膏板)
- 铝合金门窗节点图纸集(铝板幕墙).dwg
- 铝合金门窗节点设计CAD图纸
- 小区铝合金门窗工程CAD大样图
- 玻璃幕墙及铝合金型材节点构造详细设计CAD图纸(一)
- 玻璃幕墙及铝合金型材节点详细设计CAD图纸
- 玻璃幕墙及铝合金型材节点CAD详图纸
- 玻璃幕墙及铝合金型材节点构造CAD详图纸(七)
- 玻璃幕墙及铝合金型材节点构造CAD详图纸(五)
全部评论
						
							评论网友评论仅友表达个人看法,并不表明本站同意其观点,不得发布违反法律法规的内容!
						
						
 
	              	 
	              	 
	              	 
	              	 
	              	