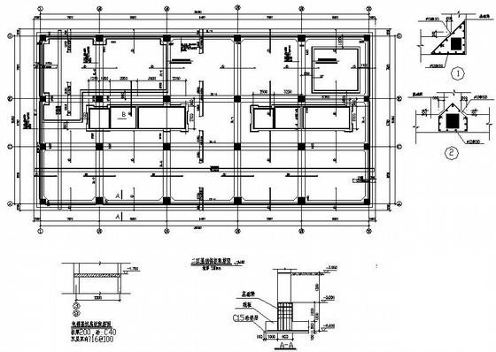
11层框支剪力墙商住楼结构设计方案CAD图纸
- 发布时间:2022-11-23
- 评论次数:0
- 浏览次数:0
- 文件大小:1.21 MB
- 收藏次数:0
- 
								文件名称: 附件-995876908809706565779.rar 附件-995876908809706565779.rar
								相关下载
							
						- 地上20层框支剪力墙结构商住楼结构施工图纸
- 10层部分框支剪力墙结构商住楼结构施工图纸
- 32层部分框支剪力墙结构商住楼结构施工图纸
- 万基商住楼结构设计(框支剪力墙结构).pdf
- 框支剪力墙结构构造
- 地上25层部分框支剪力墙商住楼结构施工图纸
- 27层框支剪力墙商住楼结构施工图纸
- 17层框支剪力墙商住楼结构施工图纸
- 29层框支剪力墙商住楼结构CAD施工图纸
- 28层框支剪力墙商住楼结构CAD施工图纸
- 框支剪力墙商住楼结构CAD图纸
- 锦绣花园高层商住楼框支剪力墙结构设计
- 框支剪力墙商住楼常用构造CAD图纸
- 26层框支剪力墙商住楼常用构造CAD详图纸
- 29层框支剪力墙结构商住楼结构CAD施工图纸(建筑图纸)
- 31层框支剪力墙结构商住楼结构CAD施工图纸(建筑图纸).dwg
- 18层框支剪力墙结构商住楼部分结构CAD施工图纸(梁转换)
- 18层部分框支剪力墙结构商住楼结构CAD施工图纸(带转换层)
- 18层框支剪力墙结构商住楼结构CAD施工图纸(桩承台基础)
- 框支剪力墙结构商住楼结构CAD施工图纸(18层桩基础)
全部评论
						
							评论网友评论仅友表达个人看法,并不表明本站同意其观点,不得发布违反法律法规的内容!
						
						
 
	              	 
	              	 
	              	