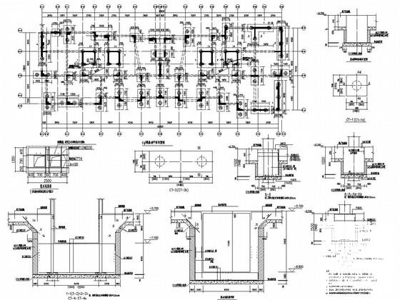
18层剪力墙结构住宅楼结构施工图平面布置图和结构设计说明
- 发布时间:2021-12-03
- 评论次数:0
- 浏览次数:0
- 文件大小:3.41 MB
- 收藏次数:0
- 
								文件名称: 附件-995888059789066885776.zip 附件-995888059789066885776.zip
								施工平面布置图设计下载
							
						- 别墅基础设计图纸平面布置图
- 小桥设计CAD图纸(平面布置图)
- 海湾泳池平面布置图纸
- 泳池机房平面布置图纸
- 污水厂平面布置图纸
- 小区总平面照明布置图纸.
- 标志墙施工图纸平面布置图
- 会所泳池施工图纸平面布置图
- 网吧电气施工平面布置图纸
- 整套施工平面布置图纸图纸例
- 水榭施工设计CAD图纸详图,含设计说明(平面布置图)
- 厂房加固设计模型及加固设计施工图纸cad平面布置图
- 码头建设CAD施工图纸(施工设计说明)(总平面布置图)
- 框架结构车库结构设计施工图平面布置图
- 高层办公楼空调设计施工图平面布置图
- 铁路工程崩塌落石整治施工图纸设计平面布置图
- 大厅装修项目消防设计施工图纸平面布置图
- 地铁工程施工方案设计全套图纸平面布置图
- 自来水厂工艺设计施工图纸平面布置图
- 固井车库采暖设计CAD施工图纸(总平面布置图)(dwg)
全部评论
						
							评论网友评论仅友表达个人看法,并不表明本站同意其观点,不得发布违反法律法规的内容!
						
						
 
	              	 
	              	 
	              	 
	              	 
	              	