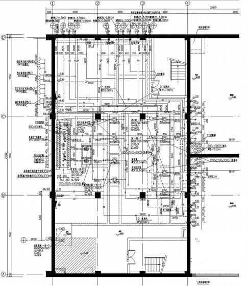
5层天气雷达塔楼给排水消防CAD施工图纸(自动喷淋裙房虹吸雨水系统)
- 发布时间:2022-10-06
- 评论次数:0
- 浏览次数:0
- 文件大小:6.09 MB
- 收藏次数:0
- 
								文件名称: 附件-995860909995668986650.rar 附件-995860909995668986650.rar
								相关下载
							
						- 5层天气雷达塔楼给排水消防CAD施工图纸(自动喷淋裙房虹吸雨水系统)
- 新一代钢桁架结构天气雷达塔楼结构CAD施工图纸
- 26层天气雷达塔楼强弱电CAD施工图纸83张
- 消防自动报警、喷淋系统()
- 3层商业裙房给排水消防设计CAD施工图纸(自动喷淋灭火系统)
- 4层体育馆给排水CAD施工图纸(消防炮系统、虹吸雨水系统)
- 4层体育馆给排水CAD施工方案图纸(消防炮系统、虹吸雨水系统)
- 厂房消防喷淋自动报警系统施工方案
- 综合客运站给排水消防CAD施工图纸(自动喷淋灭火系统)
- 办公楼改造工程给排水消防CAD施工图纸(自动喷淋系统图)
- 医院食堂给排水消防CAD施工图纸(自动喷淋系统)
- 幼儿园给排水及消防系统CAD施工图纸(自动喷淋)
- 商业楼给排水及消防系统CAD施工图纸(自动喷淋)
- 物流中心给排水消防CAD施工图纸(自动喷淋系统)
- 23层新建健身中心给排水消防CAD施工图纸(自动喷淋系统图)
- 6层医院给排水消防CAD施工图纸(自动喷淋系统图)
- 城市洗浴中心消防CAD图纸(自动喷淋系统图)
- 洗浴中心消防CAD图纸(自动喷淋系统图)
- 城市洗浴中心消防设计cad图纸_自动喷淋系统
- 6层建筑消防自动喷淋系统全套图纸.dwg
全部评论
						
							评论网友评论仅友表达个人看法,并不表明本站同意其观点,不得发布违反法律法规的内容!
						
						
 
	              	 
	              	 
	              	 
	              	 
	              	