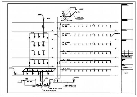
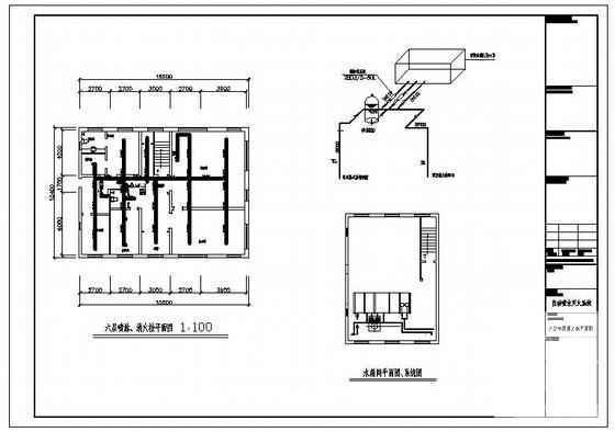
6层快捷酒店消防给排水CAD施工图纸(自动喷淋灭火系统)
- 发布时间:2022-10-03
- 评论次数:0
- 浏览次数:0
- 文件大小:2.01 MB
- 收藏次数:0
- 
								文件名称: 附件-995860958507707677870.rar 附件-995860958507707677870.rar
								相关下载
							
						- 综合客运站给排水消防CAD施工图纸(自动喷淋灭火系统)
- 18层住宅楼给排水消防设计图纸(自动喷淋灭火系统)
- 消防自动报警、喷淋系统()
- 12层酒店消防喷淋CAD施工图纸(自动喷水灭火系统)
- 高层商业住宅楼给排水及消防CAD施工图纸设计(自动喷淋灭火系统)
- 办公楼给排水及消防CAD施工图纸设计(自动喷淋灭火系统)
- 高层住宅楼给排水及消防CAD施工图纸设计(自动喷淋灭火系统)
- 3层商业裙房给排水消防设计CAD施工图纸(自动喷淋灭火系统)
- 自动喷淋灭火系统全套CAD图纸
- 30层小区给排水设计CAD施工图纸(自动喷淋灭火系统)
- 高层商住楼给排水CAD施工方案图纸(自动喷淋灭火系统)
- 委车库给排水CAD施工方案图纸(自动喷淋灭火系统)
- 30层小区给排水CAD施工方案图纸(自动喷淋灭火系统)
- 住宅小区给排水CAD施工方案图纸(自动喷淋灭火系统)
- 医院22层楼给排水CAD图纸(自动喷淋灭火系统)
- 小高层综合楼给排水CAD图纸(自动喷淋灭火系统)
- 列车站给排水设计CAD图纸(自动喷淋灭火系统)
- 技术型办公大楼给排水CAD图纸(自动喷淋灭火系统)
- 3层车站自动喷淋系统设计cad图纸和自动喷水灭火系统
- 厂房消防喷淋自动报警系统施工方案
全部评论
						
							评论网友评论仅友表达个人看法,并不表明本站同意其观点,不得发布违反法律法规的内容!
						
						
 
	              	 
	              	 
	              	