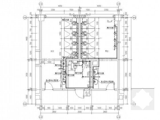
5层能源化学实验楼给排消防施工大样图
- 发布时间:2021-11-25
- 评论次数:0
- 浏览次数:0
- 文件大小:4.19 MB
- 收藏次数:0
- 
								文件名称: 附件-995859995887696596958.rar 附件-995859995887696596958.rar
								化学实验楼下载
							
						- 县7层医院综合楼给排消防施工大样图
- 7层县医院综合楼给排消防CAD施工大样图
- 高层厂房给排施工大样图.
- 一类高层办公楼给排消防CAD施工大样图
- 高层保障性住房给排消防CAD施工大样图(附商建小学).dwg
- 高层住宅楼给排消防CAD施工大样图(气体灭火系统).dwg
- 高层住宅楼及地下车库给排消防施工图纸
- 33层含商住宅楼群给排消防施工图纸
- 11595平米3层大剧院给排消防施工图纸
- 29层大型商业中心给排消防喷淋CAD施工图纸
- 高层含商住宅楼群给排消防CAD施工图纸
- 6层办公楼地板辐射采暖及消防给排CAD施工图纸
- 化学实验楼给排水成套CAD大样图
- 小学教学楼给排CAD施工图纸
- 3014.03平米大型实验项目水池厂房给排施工大样图
- 4层知名小学扩建工程给排CAD施工大样图
- 大型实验项目水池厂房给排CAD施工大样图
- 9万平48层甲级商务写字楼给排消防CAD施工图纸
- 4层小学教学楼报告厅体育馆给排消防CAD施工图纸
- 4层小学教学楼报告厅体育馆给排消防CAD施工图纸
全部评论
						
							评论网友评论仅友表达个人看法,并不表明本站同意其观点,不得发布违反法律法规的内容!
						
						
 
	              	 
	              	 
	              	 
	              	 
	              	