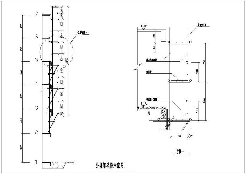
外挑架搭设示意节点构造详图纸
- 发布时间:2022-02-20
- 评论次数:0
- 浏览次数:0
- 文件大小:0.15 MB
- 收藏次数:0
-
文件名称:
附件-996055058079577587.rar
相关下载
- 外挑架搭设节点构造详图纸
- 外挑架搭设结构图纸
- 幕墙工程外脚手架搭设施工方案,构造图
- 广场工程外脚手架搭设方案(工字钢悬挑双排落地架年),平面图
- 外爬架变截面爬升示意图纸
- 框架挑脚手架节点构造详图纸
- 商住楼工程外脚手架搭设及拆除施工方案
- 提高高层建筑外脚手架搭设质QC.pdf
- 门窗洞口外脚手架搭设节点构造CAD详图纸
- 高层住宅外挑架施工方案及计算书
- 外墙导轨式外爬架节点构造CAD详图纸
- 落地及悬挑脚手架搭设与拆除施工方案(布置图纸)
- 国内公寓外脚手架施工节点(一)
- 国内公寓外脚手架施工节点(二)
- 悬挑式脚手架示意图纸cad
- 桥梁爬架模板构造示意CAD图纸
- 外用电梯搭设节点构造详图纸
- 三脚架系统示意节点构造详图纸
- 高层建筑施工中钢管扣件式悬挑外脚手架的设计验算.pdf
- 高层悬挑外脚手架及卸料平台施工方案cad平面布置图
全部评论
评论网友评论仅友表达个人看法,并不表明本站同意其观点,不得发布违反法律法规的内容!
