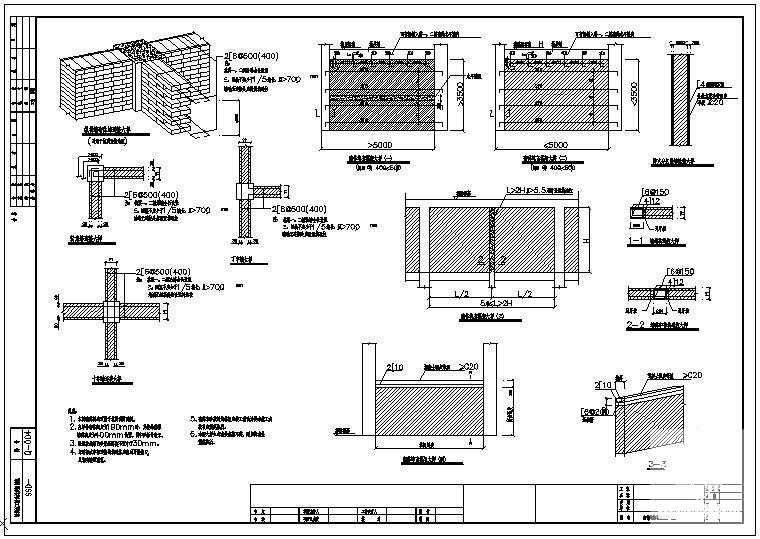
砌体结构构造大样节点构造详施工图纸
- 发布时间:2021-12-17
- 评论次数:0
- 浏览次数:0
- 文件大小:0.22 MB
- 收藏次数:0
-
文件名称:
附件-995797708960769565.rar
砌体结构大样节点图下载
- 砌体填充框架大样节点构造设计图
- 砌体结构构造大样节点构造CAD详图纸(三)
- 砌体结构构造大样节点构造CAD详图纸(二)
- 砌体结构挑梁大样节点构造CAD详图纸
- 砌体结构设计说明_节点cad图
- 广东某院砌体结构构造大样立面图
- 砌体填充框架大样节点设计详图纸
- 砌体填充框架大样节点构造设计详图纸
- 砌体填充框架大样节点构造详图纸
- 纵横墙砌体的连接大样节点构造详图纸
- 砌体结构节点详图纸cad
- 广东某院砌体结构构造大样
- 6层砌体结构中学师生宿舍楼建筑施工CAD图纸(节点大样图)
- 单层砌体结构轻钢结构大棚结构施工大样图平面图及立面图
- 砌体结构独立住宅楼cad图纸和门窗大样图,楼梯大样图
- 7层砌体结构住宅楼结构设计施工大样图
- 6层砌体结构住宅楼结构设计施工大样图
- 6层砌体结构开发区住宅楼结构施工大样图
- 7层砌体结构住宅楼结构CAD施工大样图
- 6层砌体结构住宅楼结构CAD施工大样图
全部评论
评论网友评论仅友表达个人看法,并不表明本站同意其观点,不得发布违反法律法规的内容!
