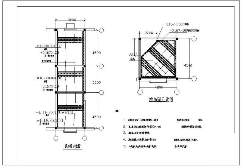
板加固示意节点构造详图纸
- 发布时间:2022-02-20
- 评论次数:0
- 浏览次数:0
- 文件大小:0.02 MB
- 收藏次数:0
-
文件名称:
附件-996056776608787597.rar
相关下载
- 楼板加固示意节点构造详图纸
- 梁板补强(加固)大样(贴钢板)节点构造CAD详施工图纸
- 筏板基础梁构造示意节点构造图纸
- 墙体开洞加固示意节点构造设计详图纸
- 墙体开洞加固示意节点构造设计详图纸
- 墙体加固示意(钢板夹墙法)节点构造详图纸
- 梁加固示意节点构造设计详图纸
- 库板底部连接做法示意节点构造详图纸
- 电网梁、板、柱模板示意节点构造详图纸
- 预制板加固节点构造CAD详图纸
- 混凝土板墙加固节点构造详图纸cad
- 预制板加固节点构造详图纸cad
- 角钢加固空心板节点构造详图纸cad
- 连续板负筋加固节点构造详图纸cad
- 框架梁负弯矩区加固示意(粘贴碳纤维布加固)节点构造详图
- 梁板加固构造大样
- 板底筋及板负筋加固节点构造详图纸cad
- 梁板加固构造详图纸cad
- 梁板加固构造大样_CAD
- 无粘结预应力梁及板大样节点构造详施工图纸
全部评论
评论网友评论仅友表达个人看法,并不表明本站同意其观点,不得发布违反法律法规的内容!
