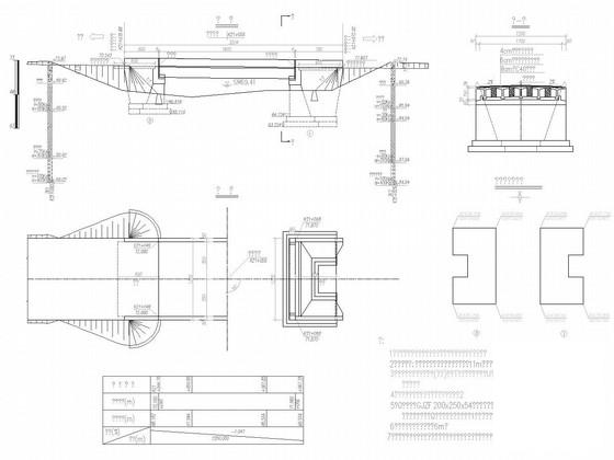
1X20米后张预应力简支T梁桥施工图纸31张构造图
- 发布时间:2021-12-20
- 评论次数:0
- 浏览次数:0
- 文件大小:12.43 MB
- 收藏次数:0
- 
								文件名称: 附件-996008677570858868.rar 附件-996008677570858868.rar
								相关下载
							
						- 1x20米后张预应力简支T梁桥初步设计图构造图
- 先简支后连续(4x30+4x30)m后张法预应力T梁桥图纸及构造图,布置图
- 装配式预应力混凝土T梁桥(先简支后结构连续)cad
- m预应力T梁桥施工图纸全套78张(先简支后连续).dwg
- 桥涵施工后张法预应力简支梁桥的施工工艺
- 3×20m后张预应力简支T梁桥施工图纸构造图及钢筋布置图
- 50米钢筋砼桥简支T梁全套竣工图纸,构造图
- 7×20m先简支后结构连续后张预应力T梁桥施工图纸58张(桥宽8.5m).
- 预应力30m简支T梁桥通用图纸(24.5米路基先简支后连续).dwg
- 先简支后连续T梁下部构造图纸29张
- 先简支后连续T梁下部构造通用图纸(30张).dwg
- 1x16m预应力混凝土后张法简支T梁桥设计套图纸构造图
- 1-20米后张法预应力砼T梁桥全套设计图纸构造图
- 23米扩大基础简支T梁桥完整设计CAD图纸(27张)
- 40米简支T梁支座构造CAD图纸
- 1-13m预应力混凝土后张法简支T梁设计套图纸(34张).
- 1-16m后张法预应力砼简支T梁设计套图纸(34张).dwg
- 35米简支T梁支座
- 后张法简支T梁大桥边梁桥面板钢筋布置CAD图纸
- 先简支后连续T梁下部构造图(27页图纸).dwg
全部评论
						
							评论网友评论仅友表达个人看法,并不表明本站同意其观点,不得发布违反法律法规的内容!
						
						
 
	              	 
	              	 
	              	