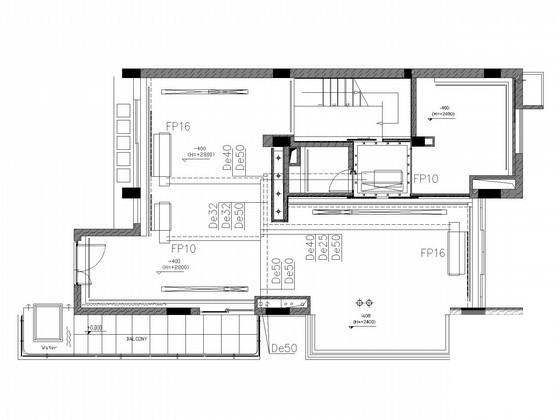
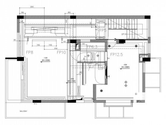
345平米别墅空调及通风系统设计施工图纸
- 发布时间:2021-11-24
- 评论次数:0
- 浏览次数:0
- 文件大小:1.1 MB
- 收藏次数:0
-
文件名称:
附件-995857778997007580587.rar
别墅通风系统设计下载
- 3层别墅空调通风系统设计施工图纸
- 多层别墅空调通风系统设计CAD施工图纸
- 双层别墅建筑空调及通风系统设计施工图纸
- 别墅空调及通风系统设计CAD施工图纸(风冷热泵)
- 高层酒店空调及通风系统设计施工图纸
- 多层办公楼空调及通风系统设计2019
- 展厅通风及空调系统设计cad图纸_烟道设计和通风设计
- 多层温泉酒店空调通风及防排烟系统设计施工CAD图纸(VRV系统)
- 办公楼空调及通风排烟系统设计CAD施工图纸(多联变频空调系统)
- 办公建筑空调通风及防排烟系统设计CAD施工图纸(变冷媒流量空调系统)
- 高层酒店空调通风及防排烟系统设计CAD施工图纸(机房设计)
- 高层宾馆空调通风及防排烟系统设计CAD施工图纸(节能设计)
- 多层科研中心空调通风及防排烟系统设计施工CAD图纸(节能设计)
- 多层餐厅空调通风及防排烟系统设计CAD施工图纸(人防设计)
- 3层别墅建筑空调通风系统设计施工图纸
- 多层别墅建筑空调通风系统设计CAD施工图纸
- 多层小别墅空调通风系统设计施工CAD图纸
- 别墅通风空调设计CAD施工图纸.dwg
- 山庄综合楼建筑空调及通风系统设计施工图纸
- 多层行政办公楼空调通风及防排烟系统设计施工图纸
全部评论
评论网友评论仅友表达个人看法,并不表明本站同意其观点,不得发布违反法律法规的内容!
