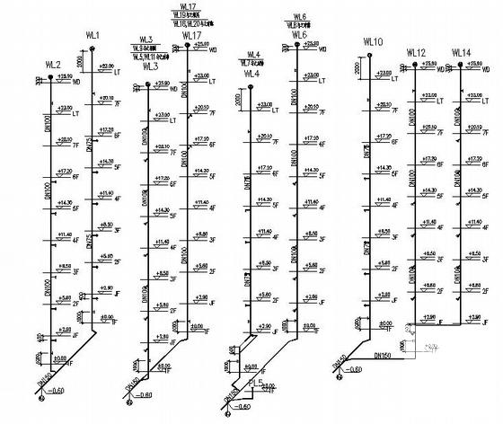
7层小区住宅楼给排水施工图纸
- 发布时间:2021-12-11
- 评论次数:0
- 浏览次数:0
- 文件大小:0.87 MB
- 收藏次数:0
- 
								文件名称: 附件-995860678980897887956.rar 附件-995860678980897887956.rar
								住宅楼给排水施工图下载
							
						全部评论
						
							评论网友评论仅友表达个人看法,并不表明本站同意其观点,不得发布违反法律法规的内容!
						
						 附件-995860678980897887956.rar
 附件-995860678980897887956.rar