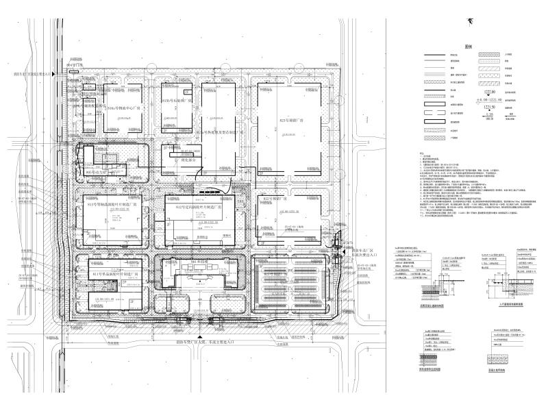
生产基地项目工程室外施工大样图cad平面布置图
- 发布时间:2024-01-02
- 评论次数:0
- 浏览次数:0
- 文件大小:29.47 MB
- 收藏次数:0
-
文件名称:
附件-996879979566960899.rar
相关下载
- 生产基地及配套项目工程冬期施工方案
- 生产基地室外工程电气初设初设图纸
- 住宅项目建筑幕墙工程施工大样图cad平面布置图
- 汽车生产基地工程CAD
- 柠檬酸盐工程废水治理项目UASB工艺平面布置图
- 学校泳池项目总图纸平面布置图
- 土地整理项目总平面布置图纸.dwg
- 标准化生产基地项目初步电气设计图平面图及系统图
- 中药生产基地3#厂房电气施工图纸cad平面布置图
- 工程室外热网施工CAD图纸大样图纸
- 生产基地项目办公楼电气CAD施工图纸
- 小学扩建项目室外景观CAD施工方案大样图
- 储备库建设项目工程施工方案(室外给水管道)
- 棚户区附属配套项目暖通施工大样图平面布置图及系统图
- 4层住宅项目结构施工大样图幼儿园平面布置图
- 小区室外给水工程CAD平面图
- 听海轩建设项目听海轩电气室外cad平面图
- 生产基地给排水全套施工图人防平面图及大样图
- 农产品交易市场室外景观工程施工大样图cad平面图
- 大厅装修项目消防设计施工图纸平面布置图
全部评论
评论网友评论仅友表达个人看法,并不表明本站同意其观点,不得发布违反法律法规的内容!
