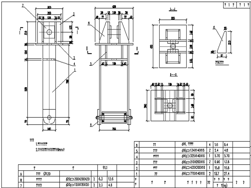
33m宽幅轻型自走式挂篮设计图纸93张附验算cad构造图及布置图
- 发布时间:2024-01-02
- 评论次数:0
- 浏览次数:0
- 文件大小:12.58 MB
- 收藏次数:0
- 
								文件名称: 附件-996870765589959979.rar 附件-996870765589959979.rar
								相关下载
							
						- 悬臂浇筑桥梁挂篮施工100米跨菱形挂篮设计图纸构造图及布置图
- 轻型挂篮模板系统图纸14张构造图,底蓝平面图
- 双索面自锚式悬索桥竣工图纸构造图及配筋图
- 轻型挂篮模板系统图纸(14页图纸).dwg
- 挂篮构造CAD图纸
- 33m跨6m高门式刚架
- 牵索式挂篮结构设计
- 三角斜拉式挂篮施工设计图纸98张附计算书48页cad
- 64米连续梁挂篮CAD施工大样图附计算书(55页)
- 悬浇梁菱形挂篮全套设计CAD图纸及计算书(68张附主桥施工方案)
- 门式刚架结构人行天桥设计大样图附计算书平面布置图
- 长江公路大桥牵索式挂篮设计CAD图纸
- 3连高低跨单层门式刚架厂房建筑结构图纸(最大跨度33m)(平面布置图)
- 条形基础门式钢架轻型厂房结构CAD施工图纸(平面布置图)
- 门式轻型钢结构单层厂房结构CAD施工图纸(条形基础)(平面布置图)
- 附建式地下室及地下车库结构施工大样图平面布置图
- 挂篮构造图纸(20页图纸).dwg
- 挂篮节点构造CAD详图纸
- 扶壁式挡土墙施工方案大样图设计CAD附计算书,构造图
- 自计井及栈桥节点详细设计CAD图纸
全部评论
						
							评论网友评论仅友表达个人看法,并不表明本站同意其观点,不得发布违反法律法规的内容!
						
						
 
	              	 
	              	 
	              	 
	              	 
	              	