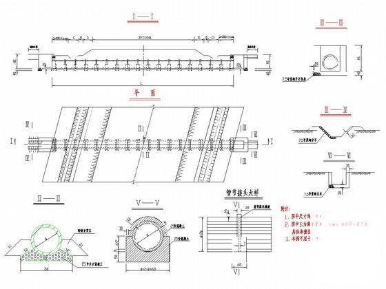
一级公路圆管涵及八字墙设计通用图纸构造图及布置图
- 发布时间:2021-12-20
- 评论次数:0
- 浏览次数:0
- 文件大小:1.62 MB
- 收藏次数:0
-
文件名称:
附件-995788957076758586.rar
公路圆管涵设计图下载
- 公路盖板涵、圆管涵、石拱涵通用图纸.dwg
- 公路涵洞设计图纸32张(盖板涵圆管涵).dwg
- 公路涵洞设计CAD图纸(圆管涵、盖板涵)
- 高速公路涵洞通用图纸(盖板涵圆管涵).
- 一级公路涵洞通用CAD图纸33张(箱涵板涵圆管涵)
- 一级公路涵洞通用图纸(箱涵板涵圆管涵).dwg
- 公路各种孔径圆管涵设计通用图纸
- 高速公路工程圆管涵施工方案
- 高速公路圆管涵倒虹吸图纸.
- 2014年公路涵洞工程通用图纸76张(盖板涵圆管涵).dwg
- 公路涵洞工程CAD施工图纸设计(箱涵圆管涵).dwg
- 钢筋混凝土圆管涵设计图纸
- 圆管涵通用CAD设计图纸.dwg
- 盖板涵、圆管涵涵洞CAD图纸
- 全套涵洞标准构造设计图纸(圆管涵盖板涵箱涵).dwg
- 圆管涵布置CAD图纸
- 钢筋砼圆管涵斜圆管钢筋数量表
- 盖板,圆管涵,箱涵标准图纸.dwg
- 公路道路,桥梁,涵洞,横断面图,圆管涵,倒虹吸,盖板涵,全套cad图纸
- 公路改建工程圆管涵及盖板涵CAD施工图,49页图纸.dwg
全部评论
评论网友评论仅友表达个人看法,并不表明本站同意其观点,不得发布违反法律法规的内容!
