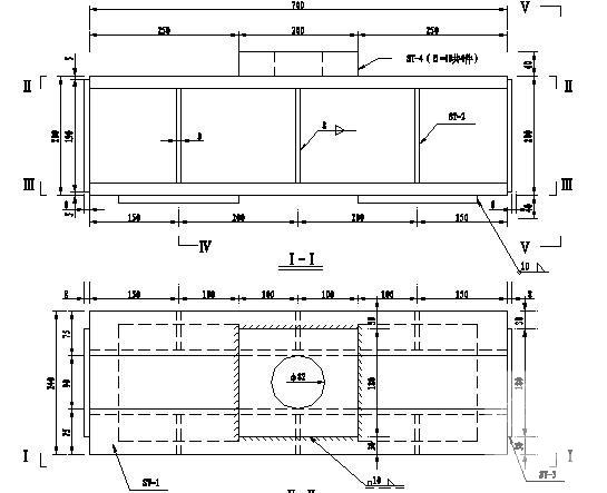
轻型挂篮模板系统图纸14张构造图,底蓝平面图
- 发布时间:2021-12-19
- 评论次数:0
- 浏览次数:0
- 文件大小:1.64 MB
- 收藏次数:0
- 
								文件名称: 附件-995788978778889660.rar 附件-995788978778889660.rar
								轻型挂篮模板系统图下载
							
						- 轻型挂篮模板系统图纸(14页图纸).dwg
- 弱电系统图设计模板(35页CAD图纸)
- 33m宽幅轻型自走式挂篮设计图纸93张附验算cad构造图及布置图
- 悬臂浇筑桥梁挂篮施工100米跨菱形挂篮设计图纸构造图及布置图
- (488048)米变线间距无平衡重连续梁挂篮CAD施工图纸设计(组合钢模板)
- 弱电系统CAD图纸设计模板
- 防雷接地系统模板CAD图纸
- 挂篮构造CAD图纸
- 挂篮施工方案图设计(25页图纸)(cad)
- 挂篮设计施工大样图.dwg
- 菱形挂篮设计CAD图纸
- 大桥挂篮设计CAD图纸
- 悬臂浇筑桥梁挂篮施工100米跨菱形挂篮设计图纸.dwg
- 防火门监控系统图纸设计模板
- 连续梁挂篮设计CAD图纸
- 大桥挂篮施工设计CAD图纸
- 桥梁挂篮侧面示意CAD图纸
- 桥梁挂篮(修饰工作)示意CAD图纸
- 大桥挂篮CAD施工图纸
- 挂篮节点构造CAD详图纸
全部评论
						
							评论网友评论仅友表达个人看法,并不表明本站同意其观点,不得发布违反法律法规的内容!
						
						
 
	              	 
	              	 
	              	