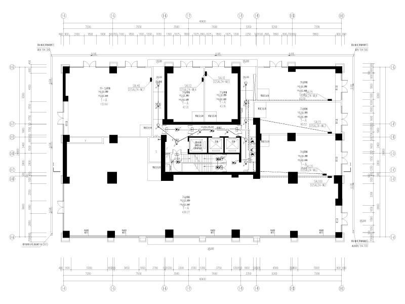
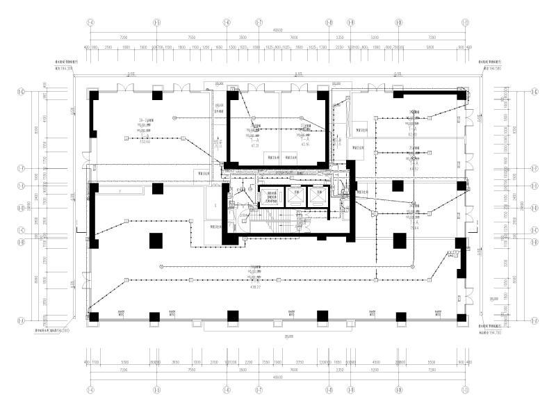
32层250000平方大型棚户区改造项目暖通施工图纸cad平面图及系统图
- 发布时间:2024-01-02
- 评论次数:0
- 浏览次数:0
- 文件大小:13.13 MB
- 收藏次数:0
-
文件名称:
附件-996855588885996769.zip
相关下载
- 棚户区改造项目暖通施工图纸负荷平面图及通风图
- 棚户区改造项目暖通施工图纸通风防排烟平面图
- 15层棚户区改造项目暖通平面图
- 25层棚户区改造工程暖通施工图纸平面图及系统图
- 棚户区改造项目给排水施工大样图cad平面图
- 大型住宅综合体项目暖通施工图平面图及系统图,剖面图
- 32层农村改造项目暖通施工大样图平面图及系统图
- 棚户区附属配套项目暖通施工大样图平面布置图及系统图
- 住宅及商业项目暖通施工图纸通风平面图及系统图
- 棚户区改造扩改翻项目大门改造施工图纸_平面图_大样图_cad
- 高层棚户区改造工程暖通施工图纸cad平面图
- 棚户区改造地下室暖通施工图纸cad平面图
- 城市棚户区改造项目绿化
- 棚户区改造工程给排水施工图纸大样图及平面图,系统图
- 酒店消防改造设计项目平面图及系统图,施工图
- 影院内装项目暖通施工大样图平面图及系统图
- 城中村改造项目给排水施工图纸平面图及系统图
- 30层棚户区改造住宅及配套电气施工图纸平面图
- 精品酒店项目消防改造工程平面图及消火栓系统原理图
- 棚户区安置房暖通平面图
全部评论
评论网友评论仅友表达个人看法,并不表明本站同意其观点,不得发布违反法律法规的内容!
