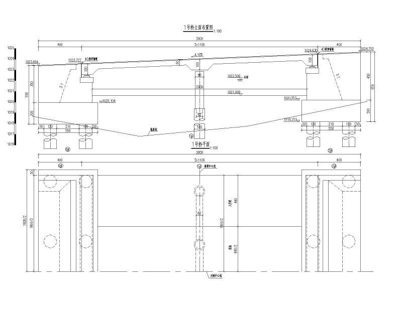
182018m钢筋砼连续箱梁天桥施工图纸cad构造图及布置图
- 发布时间:2024-01-02
- 评论次数:0
- 浏览次数:0
- 文件大小:18.32 MB
- 收藏次数:0
- 
								文件名称: 附件-996877779096559775.rar 附件-996877779096559775.rar
								相关下载
							
						- 预应力混凝土连续箱梁桥施工图纸设计构造图及钢筋布置图
- 连续箱梁立交桥全套CAD施工图纸_钢筋砼桥.dwg
- 预应力混凝土现浇连续箱梁桥施工图纸设计构造图及桥型布置图
- 预应力混凝土连续箱梁桥设计图纸平面布置图及桥台构造图
- 现浇预应力砼箱形连续梁桥上部构造标准图纸
- 变截面预应力砼连续箱梁挂篮设计套图(30页图纸).dwg
- 107米变截面连续箱梁天桥施工图纸构造图
- 连续箱梁桥桥墩盖梁钢筋构造设计详细CAD图纸
- 连续箱梁桥桥墩盖梁钢筋构造设计CAD详图纸11张
- 等截面斜腹板钢箱梁过街人行天桥施工图纸cad平面布置图及构造图,剖面图
- 47m钢箱梁人行天桥cad施工图设计,主梁构造图和桥墩桩基钢筋构造图
- 分离式立交桥连续箱梁一般构造CAD图纸及钢筋构造CAD图纸
- 28.3m跨径钢箱梁过街天桥施工图纸cad平面布置图及构造图
- 30米钢筋砼桥预制箱梁模板设计图纸组装图
- 等截面钢筋混凝土连续梁式人行天桥CAD大样图
- 预应力混凝土连续箱梁车行天桥CAD施工图纸64张.dwg
- 预应力连续箱梁车行天桥CAD施工图纸63张.dwg
- 环形等截面钢箱梁交叉口过街天桥初设初设图纸cad平面布置图及构造图
- 284528m变截面连续箱梁天桥CAD施工图纸(正交设计)(横梁钢筋构造)
- 跨径30米预应力混凝土连续箱梁设计图纸钢筋构造图,流程图
全部评论
						
							评论网友评论仅友表达个人看法,并不表明本站同意其观点,不得发布违反法律法规的内容!
						
						
 
	              	 
	              	 
	              	 
	              	 
	              	