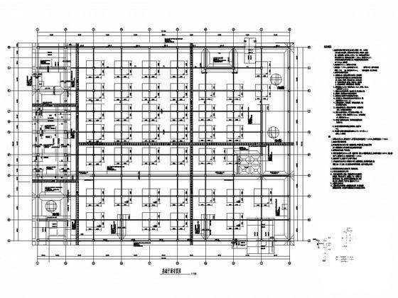
3层广场管理用房及车库结构设计施工图纸
- 发布时间:2021-12-05
- 评论次数:0
- 浏览次数:0
- 文件大小:1.83 MB
- 收藏次数:0
-
文件名称:
附件-995887950757760687875.rar
车库结构设计下载
- 框架结构人民广场地下车库及管理用房结构施工图纸
- 3层广场管理用房及车库结构CAD施工图纸
- 3层小区车库、管理用房建筑施工CAD图纸
- 3层小区车库、管理用房建筑施工CAD图纸
- 3层城管理局广场扩建及车库工程CAD施工图纸
- 管理用房及厕所结构设计CAD施工图纸
- 文化广场管理用房建筑施工CAD图纸(四层框架结构)
- 公园管理用房施工CAD详图纸
- 工业园管理用房施工做法
- 管理用房设计图纸.dwg
- 轻钢结构管理用房
- 4层框架结构公交枢纽中心及管理用房结构CAD施工图纸
- 隧道工程管理用房及变电所电气CAD施工图纸
- 单层小型管理用房强电施工图纸
- 物业管理用房建筑施工CAD图纸
- 仿古管理用房建筑CAD施工图纸
- 公园管理用房施工详细设计CAD图纸
- 公园管理用房CAD施工方案图纸设计
- 4层现场管理用房电气CAD施工图纸
- 管理用房给排水CAD施工图纸
全部评论
评论网友评论仅友表达个人看法,并不表明本站同意其观点,不得发布违反法律法规的内容!
