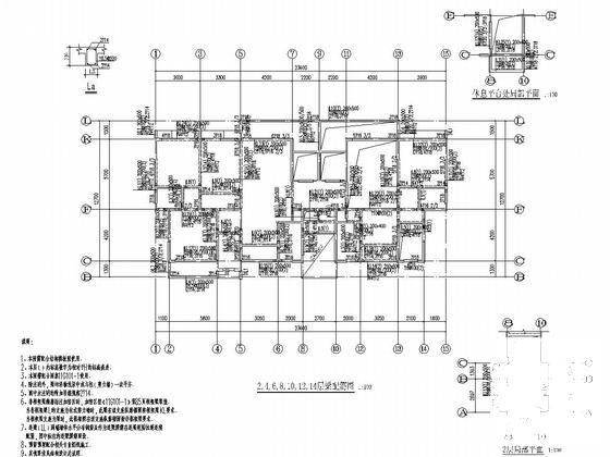
4069平18层剪力墙结构大学教职工住宅楼结构施工大样图
- 发布时间:2021-12-05
- 评论次数:0
- 浏览次数:0
- 文件大小:4.04 MB
- 收藏次数:0
- 
								文件名称: 附件-995887859589576800990.rar 附件-995887859589576800990.rar
								大学职工住宅楼下载
							
						- 4069平18层剪力墙结构大学教职工住宅结构CAD施工大样图(建筑大样图)
- 7500平11层框架剪力墙结构住宅楼结构施工大样图
- 3600平6层带底商剪力墙结构住宅楼结构施工大样图
- 5800平7层剪力墙结构住宅楼建筑结构CAD施工大样图
- 16000平32层剪力墙结构高层住宅楼结构CAD施工大样图
- 2400平8层剪力墙结构住宅楼建筑结构CAD施工大样图
- 11000平30层剪力墙结构住宅楼建筑结构CAD施工大样图
- 24层剪力墙结构住宅楼结构CAD施工大样图(23000平).dwg
- 12000平33层剪力墙高层住宅楼结构CAD施工大样图
- 20000平27层剪力墙高层住宅楼结构CAD施工大样图
- 4400平8层带底商剪力墙结构住宅楼结构CAD施工大样图(建筑大样图)
- 28层剪力墙住宅楼结构CAD施工图纸(平法图纸)
- 28层框架剪力墙结构住宅楼CAD施工图纸(平法)
- [32层剪力墙住宅楼结构CAD施工图纸(平法图纸)
- 4万平25层剪力墙结构施工大样图
- 25层剪力墙结构CAD施工大样图(4万平)
- 17000平24层高层住宅楼结构施工大样图
- 14000平33层剪力墙高层住宅楼结构施工CAD大样图(详细建筑CAD大样图)
- 12000平33层剪力墙高层住宅楼结构CAD施工大样图(建筑大样图)
- 10000平27层剪力墙结构住宅楼建筑结构施工图纸
全部评论
						
							评论网友评论仅友表达个人看法,并不表明本站同意其观点,不得发布违反法律法规的内容!
						
						
 
	              	 
	              	 
	              	 
	              	 
	              	