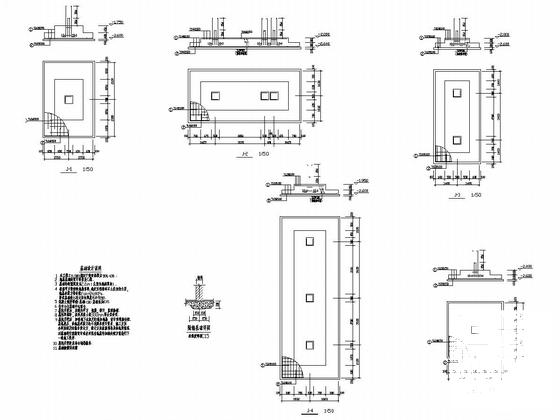
3层框架结构小学宿舍楼结构设计施工大样图
- 发布时间:2021-12-04
- 评论次数:0
- 浏览次数:0
- 文件大小:1.35 MB
- 收藏次数:0
- 
								文件名称: 附件-995887575609557597566.rar 附件-995887575609557597566.rar
								框架结构宿舍楼下载
							
						- 6层框架结构中心小学宿舍楼结构设计施工大样图
- 3层框架结构小学宿舍楼结构CAD施工大样图(建筑大样图)
- 小学宿舍楼节点大样图纸2017
- 小学框架结构宿舍楼结构设计CAD施工图纸(平面布置图)
- 小学宿舍楼框架结构CAD施工图纸
- 小学宿舍楼电气CAD图纸
- 小学4层宿舍楼结构设计CAD施工图纸
- 小学5层框架食堂宿舍楼结构设计CAD图纸
- 6层(局部7层)框架结构中心小学宿舍楼结构CAD施工大样图
- 4层框架结构小学教学楼、宿舍楼、食堂结构施工图纸(建施).
- 4层框架结构宿舍楼结构设计施工大样图
- 6层框架结构男生宿舍楼结构设计施工大样图
- 5层框架结构宿舍楼结构设计施工大样图
- 五河小学6层框架结构宿舍楼结构设计CAD施工图纸(平面布置图)
- 4层带内庭小学教师宿舍楼建筑结构施工大样图
- 德钦县小学4层宿舍楼结构设计CAD图纸(梁平法施工图)
- 五河县小学6层框架宿舍楼结构设计CAD施工图纸
- 德钦县4层小学宿舍楼结构设计CAD施工图纸
- 3层框架结构小学食堂结构施工大样图
- 两层框架结构小学风雨操场结构施工大样图
全部评论
						
							评论网友评论仅友表达个人看法,并不表明本站同意其观点,不得发布违反法律法规的内容!
						
						
 
	              	 
	              	 
	              	 
	              	 
	              	