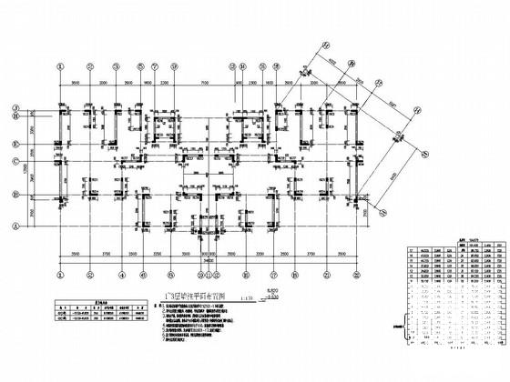
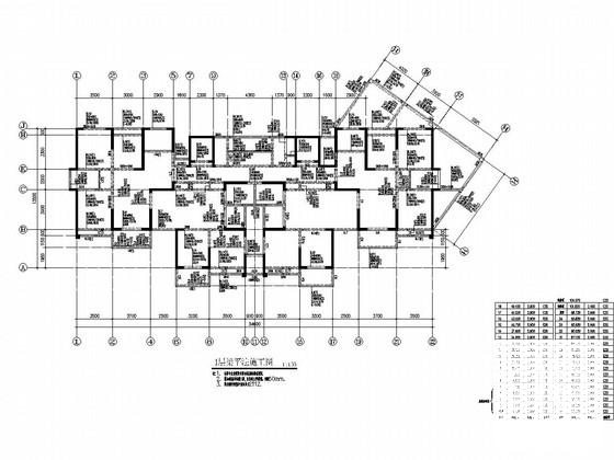
34层剪力墙结构综合商住楼结构施工大样图
- 发布时间:2021-12-04
- 评论次数:0
- 浏览次数:0
- 文件大小:4.48 MB
- 收藏次数:0
-
文件名称:
附件-995888997755677508770.rar
剪力墙结构商住楼下载
- 34层剪力墙结构综合商住楼结构CAD施工大样图
- 18层剪力墙结构商住楼结构施工大样图
- 32层剪力墙结构高层商住楼结构施工大样图
- 29层剪力墙结构高层商住楼结构施工大样图
- 地上32层剪力墙结构商住楼结构施工大样图
- 地上28层剪力墙结构商住楼结构施工大样图
- 32层剪力墙结构商住楼结构施工大样图
- 17层框架剪力墙结构商住楼结构施工大样图
- 28层剪力墙结构商住楼结构施工大样图
- 16层框架剪力墙结构商住楼结构施工大样图
- 11层框架剪力墙结构商住楼结构施工大样图
- 24层剪力墙结构商住楼结构施工大样图
- 地上24层剪力墙结构商住楼结构施工大样图
- 18层框架剪力墙结构商住楼结构施工大样图
- 32层框架剪力墙结构商住楼结构施工大样图
- 地上11层剪力墙结构商住楼结构施工大样图
- 27层剪力墙结构商住楼结构施工大样图
- 17层剪力墙结构商住楼结构CAD施工大样图
- 32层剪力墙结构商住楼结构CAD施工大样图
- 22层剪力墙结构商住楼结构CAD施工大样图
全部评论
评论网友评论仅友表达个人看法,并不表明本站同意其观点,不得发布违反法律法规的内容!
