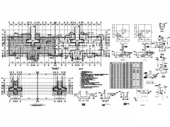
地上7层框架剪力墙结构住宅楼结构施工大样图
- 发布时间:2021-12-03
- 评论次数:0
- 浏览次数:0
- 文件大小:2.81 MB
- 收藏次数:0
- 
								文件名称: 附件-995887778700098877856.zip 附件-995887778700098877856.zip
								框架剪力墙住宅楼下载
							
						- 地上6层异形柱框架剪力墙结构住宅楼结构施工大样图
- 地上9层框架剪力墙结构住宅楼结构施工大样图
- 地上18层框架剪力墙结构住宅楼结构施工大样图
- 地上15层异形柱框架剪力墙结构住宅楼结构施工大样图
- 地上6层框架剪力墙结构住宅楼结构施工大样图
- 地上12层框架剪力墙结构住宅楼结构施工大样图
- 地上18层框架剪力墙结构住宅楼结构CAD施工大样图
- 地上12层框架剪力墙结构住宅楼结构CAD施工大样图
- 地上11层框架剪力墙结构住宅楼结构CAD施工大样图
- 地上11层部分框架剪力墙结构住宅楼结构CAD施工大样图
- 地上29层剪力墙结构住宅楼结构施工大样图
- 地上15层剪力墙结构住宅楼结构施工大样图
- 地上23层剪力墙结构住宅楼结构施工大样图
- 地上9层剪力墙结构住宅楼结构施工大样图
- 地上33层剪力墙结构住宅楼结构施工大样图
- 地上32层剪力墙结构住宅楼结构施工大样图
- 地上18层剪力墙结构住宅楼结构施工大样图
- 地上25层剪力墙结构住宅楼结构施工大样图
- 地上8层剪力墙结构住宅楼结构施工大样图
- 地上7层剪力墙结构住宅楼结构施工大样图
全部评论
						
							评论网友评论仅友表达个人看法,并不表明本站同意其观点,不得发布违反法律法规的内容!
						
						
 
	              	 
	              	 
	              	