质监局电气施工图纸

一、项目概况

本项目为国家电子器件及绿色照明产品质量监督检验中心,总建筑设计面积:17176平方米,其中地上部分14424平方米,地下部分2752平方米。该项目地上十层,地下一层,建筑高度45.05米,属多层民用建筑。

二、设计范围及内容

1.两路10KV电源由当地电业提供,10KV电缆头后端由该资料完成。

2.凡属于装修和工艺设计要求的,该资料根据功能及工艺要求预留电源。

3.变配电、照明、电力系统。

4.防雷与接地系统。

三、图纸展示

电力配电系统图(一)

PL(E)2 消防电力双切柜系统图

变电所低压配电系统图(三)

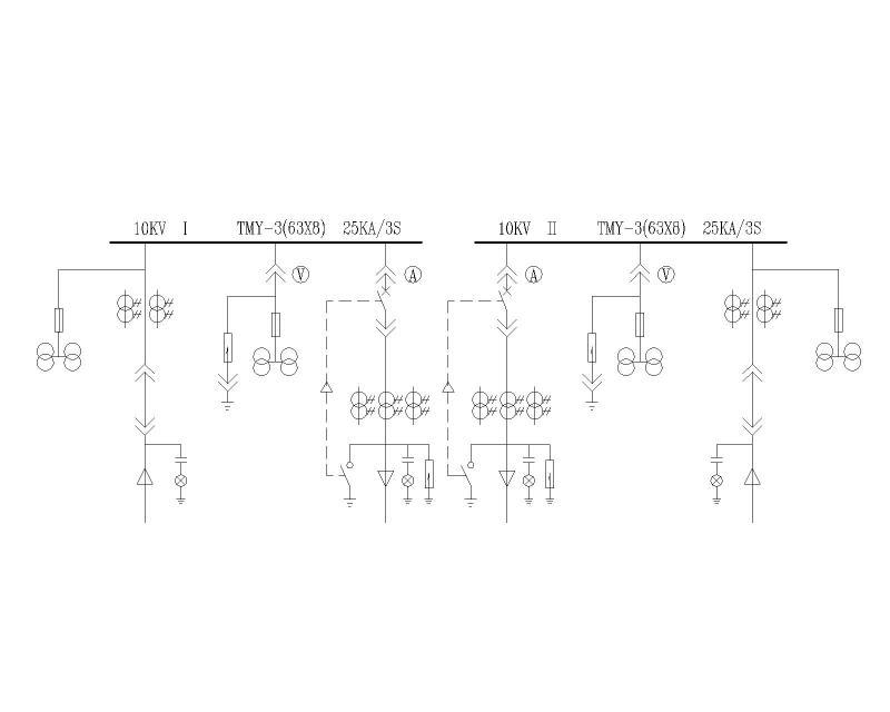
变电所高压配电系统图

垂直配电干线图


以下是附件的其中一部分截图,共5张,您也可以 搜索 更多您想要的资源
  • 质监局电气施工图纸 - 1
    第 1 张图
  • 质监局电气施工图纸 - 2
    第 2 张图
  • 质监局电气施工图纸 - 3
    第 3 张图
  • 质监局电气施工图纸 - 4
    第 4 张图
  • 质监局电气施工图纸 - 5
    第 5 张图
以上是部分截图,请下载附件后查看完整高清内容
网站首页  | 
本站所有内容均由网友自主分享,仅供学习和参考,如有侵权内容或者违法行为,请及时联系站长删除。