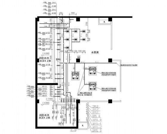
2层大型城市广场、会展中心给排水CAD施工图纸(室外消火栓系统)
- 发布时间:2023-11-30
- 评论次数:0
- 浏览次数:0
- 文件大小:0 MB
- 收藏次数:0
-
文件名称:
附件-995860755886790786675.rar
相关下载
- 24层大型国际商业广场给排水CAD施工图纸(室外消火栓系统)
- 2层城市商业广场给排水CAD施工方案图纸(室外消火栓系统)
- 大型地下购物广场给排水CAD施工图纸(室外消火栓用水量)
- 6层大型体育公园会所给排水CAD图纸(室外消火栓系统)
- 2层32252平米大型城市广场、会展中心给排水施工大样图
- 22层大型宾馆给排水CAD施工方案图纸(室外消火栓用水量)
- 12个班大型幼儿园给排水设计CAD施工图纸(室外消火栓系统)
- 朗润园商业广场临时水电施工方案(室外消火栓系统)
- 3层商业建筑给排水CAD施工方案图纸(室外消火栓系统)
- 17层住宅小区给排水CAD施工方案图纸(室外消火栓系统)
- 12层知名酒店给排水CAD施工方案图纸(室外消火栓系统)
- 3层学校食堂建筑给排水CAD施工方案图纸(室外消火栓系统)
- 4层学生食堂给排水CAD施工方案图纸(室外消火栓系统)
- 幼儿园和物业中心给排水CAD施工图纸(室外消火栓系统)
- 综合高层给排水CAD施工图纸(五星酒店、公寓)(室外消火栓系统)
- 多层病房楼给排水及消防设计CAD施工图纸(室外消火栓系统)
- 4层宾馆建筑给排水CAD施工方案图纸(室外消火栓系统)
- 仪表厂工程给排水CAD施工图纸(室外消火栓系统)
- 恒大7层复式洋楼给排水CAD施工图纸(2018)(室外消火栓系统)
- 国际采购中心主展馆给排水CAD施工图纸(室外消火栓系统)
全部评论
评论网友评论仅友表达个人看法,并不表明本站同意其观点,不得发布违反法律法规的内容!
