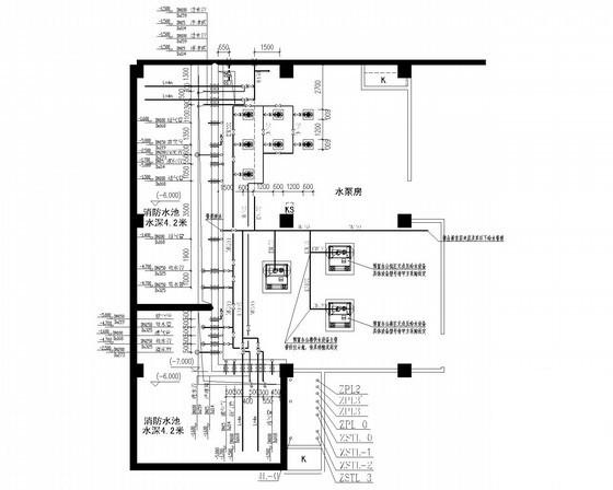
2层32252平米大型城市广场、会展中心给排水施工大样图
- 发布时间:2021-11-28
- 评论次数:0
- 浏览次数:0
- 文件大小:0 MB
- 收藏次数:0
- 
								文件名称: 附件-995860755886790786675.rar 附件-995860755886790786675.rar
								大型会展中心下载
							
						- 2层大型城市广场、会展中心给排水CAD施工图纸(室外消火栓系统)
- 城市会展中心电气图纸.dwg
- 5层大型生活广场给排水CAD施工大样图(虹吸雨水)
- 城市上两层商业广场给排水施工大样图
- 2层大型知名会展中心电气CAD施工大样图93张
- 大型会展中心桁架结构施工图纸
- 城市会展中心结构CAD施工图纸
- 3层大型餐饮广场给排水CAD图纸
- 大型会展中心建筑方案文本(CAD)
- 城市会展中心动力配电图纸
- 华东设计院——大型城市广场建筑施工图纸
- 城市广场设计_CAD
- 5层大型文艺会展中心空调通风设计CAD施工大样图.dwg
- 城市广场电气图纸.dwg
- 会展中心暖通空调施工大样图
- 城市广场设计施工CAD图纸
- 城市休闲广场施工CAD图纸
- 城市广场全套施工CAD图纸
- 5层大型生活广场给排水CAD施工图纸(虹吸雨水)
- 大型地下购物广场给排水CAD施工图纸(室外消火栓用水量)
全部评论
						
							评论网友评论仅友表达个人看法,并不表明本站同意其观点,不得发布违反法律法规的内容!
						
						
 
	              	 
	              	 
	              	 
	              	 
	              	